Brautarholt 4-4A 12.41.203
Síðast Samþykkt á fundi fyrir 4 árum síðan.
Aðilar sem vísað er í
Málsaðilar
Skipulags- og samgönguráð nr. 104
Samþykkt
Fyrirspurn
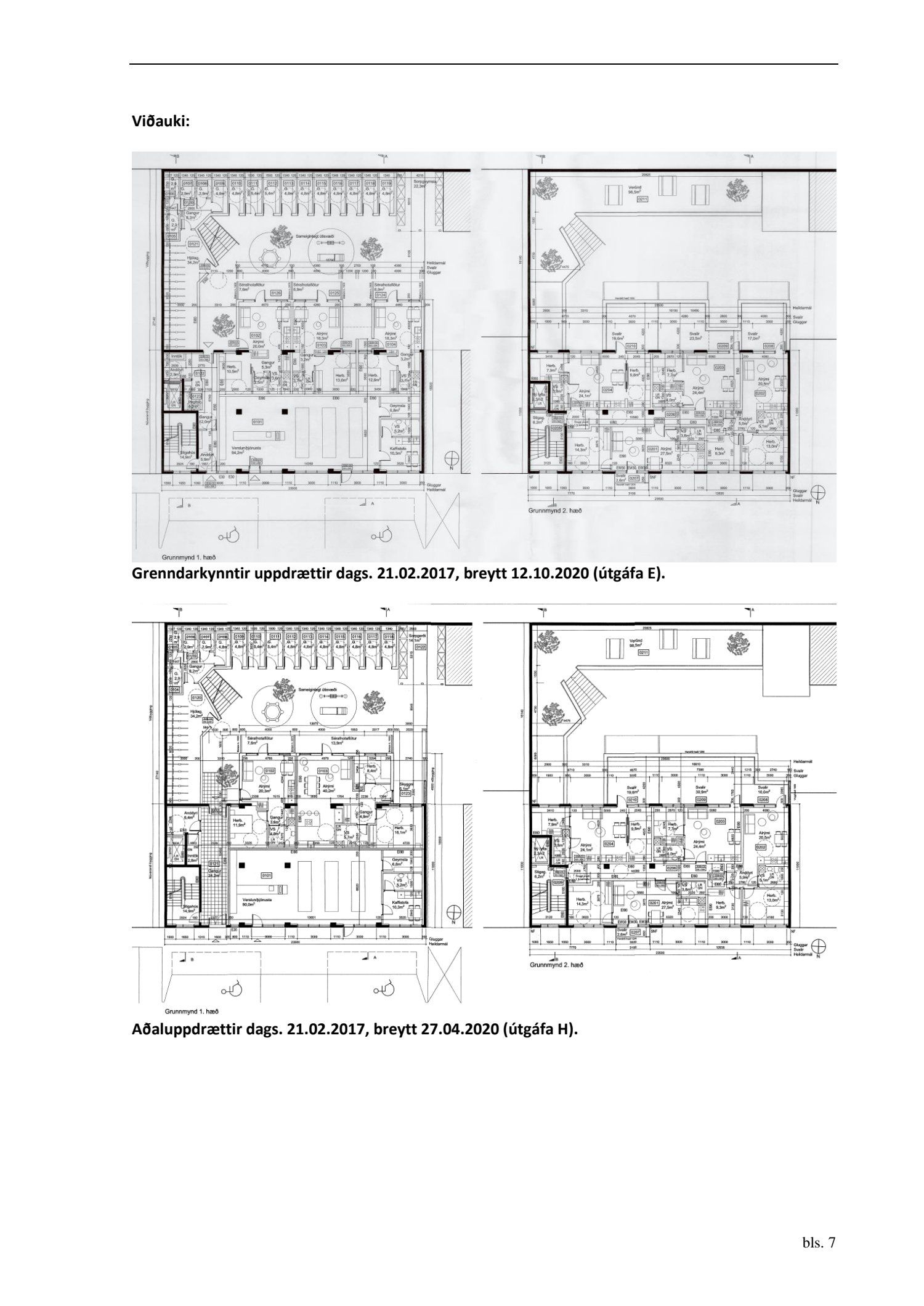
Að lokinni grenndarkynningu er lagt fram að nýju erindi frá afgreiðslufundi byggingarfulltrúa frá 6. október 2020 þar sem sótt er um leyfi til að byggja einnar hæðar viðbyggingu á bakhlið, stækka og síkka glugga og koma fyrir svölum á báðum hliðum, koma fyrir lyftu og innrétta 16 íbúðir á 2. - 4. hæð og verslun og sameiginlegt þvottahús á jarðhæð, einnig til að byggja einnar hæðar byggingu að lóðamörkum í austur og suður þar sem innréttuð verður hjólageymsla og geymslur íbúða með verönd á þaki á og við hús nr. 4, mhl. 01 á lóð nr. 4-4A við Brautarholt, samkvæmt uppdr. T.ark arkitekta ehf. dags. 21. febrúar 2017 síðast br. 27. apríl 2021. Lagður fram tölvupóstur Pálmar Kristmundsson dags. 14. desember 2020 þar sem óskað er eftir framlengingu á athugasemdarfresti. Erindi var grenndarkynnt frá 18. nóvember 2020 til og með 8. janúar 2021. Eftirtaldir sendu athugasemdir: PK Arkitekta ehf. , Pálmar Kristmundsson, dags. 27. nóvember 2020 og 7. janúar 2021 og Sigurður G Guðmundsson f.h. PKdM Arkitekta ehf. dags. 7. janúar 2021. Einnig er lögð fram umsögn skipulagsfulltrúa dags. 30. apríl 2021.
Svar

Samþykkt með vísan til umsagnar skipulagsfulltrúa dags. 30. apríl 2021 með fjórum atkvæðum fulltrúa Samfylkingarinnar, Pírata og Viðreisnar. 

Gestir
Ingvar Jón Bates Gíslason verkefnastjóri tekur sæti á fundinum undir þessum lið með fjarfundabúnaði.