Síðast tekið fyrir á fundi fyrir 7 árum síðan.
Aðilar sem vísað er í
Skipulags- og samgönguráð nr. 12
Annað
Fyrirspurn
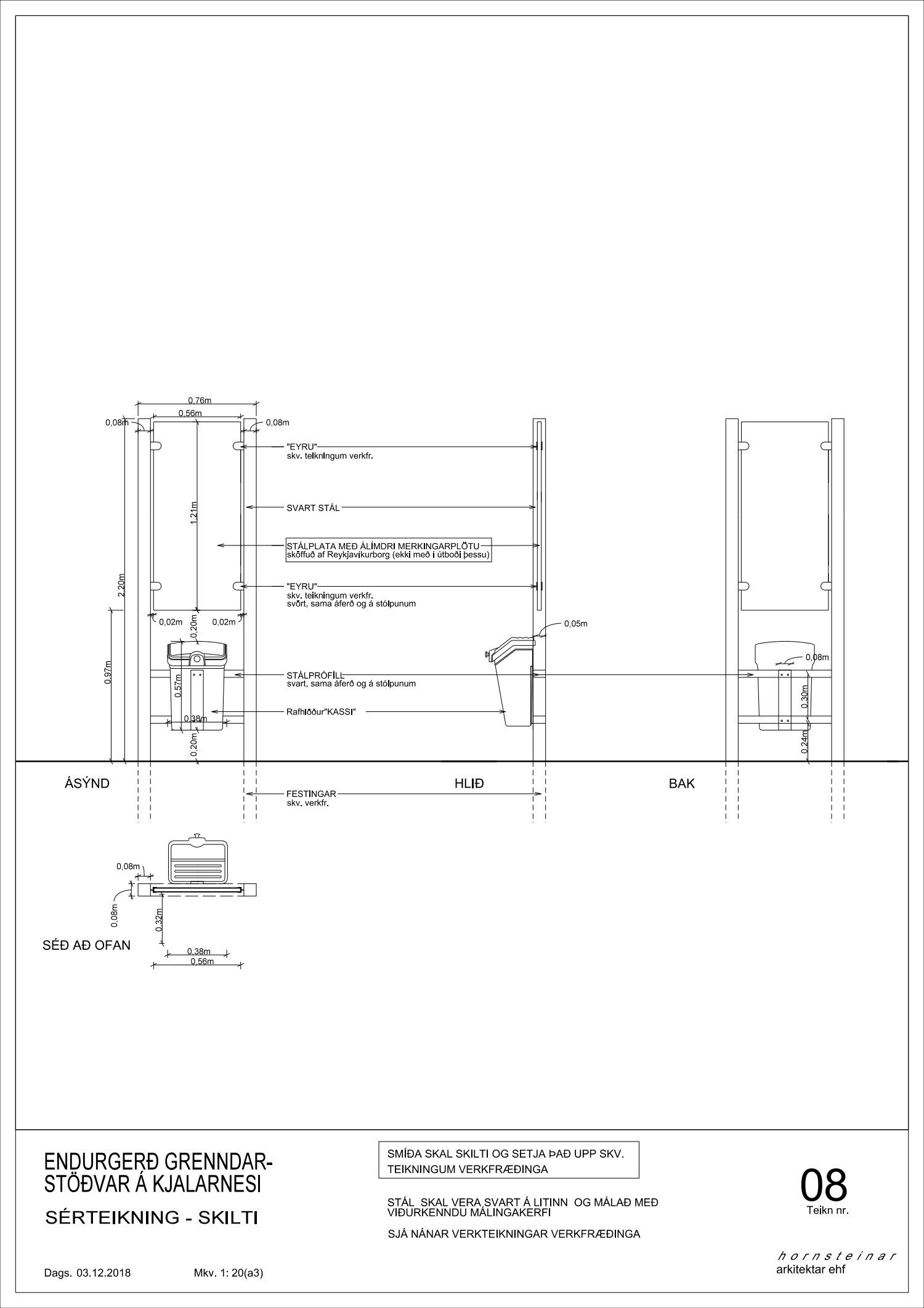
Lagðar eru fram tillögur um mögulega framtíðarsýn grenndarstöðvar á Kjalarnesi auk útboðsteikningar frá   Hornsteinum arkitektar ehf. dags. 3. desember 2018 vegna kynningar á endurgerð grendarstöðvar á Kjalarnesi. 
Svar

Umhverfis- og heilbrigðisráð bókar: Umhverfis- og heilbrigðisráð fagnar fyrirhugaðri endurgerð grendarstöðvar á Kjalarnesi þar sem veðuraðstæður á svæðinu kalla á breytingar. Þarft og brýnt er að bæta þjónustu við Kjalnesinga með þessum hætti.

Gestir
Sigríður Brynjólfsdóttir hjá Hornsteinum arkitektum og Sigurður Halldórsson frá Pure North taka sæti á fundinum undir þessum lið.