Síðast Samþykkt á fundi fyrir 5 árum síðan.
Skipulags- og samgönguráð nr. 83
Samþykkt
Fyrirspurn
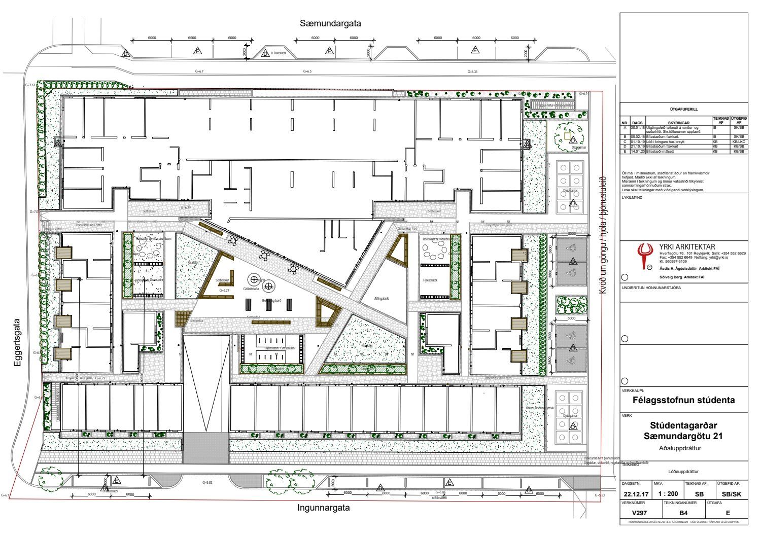
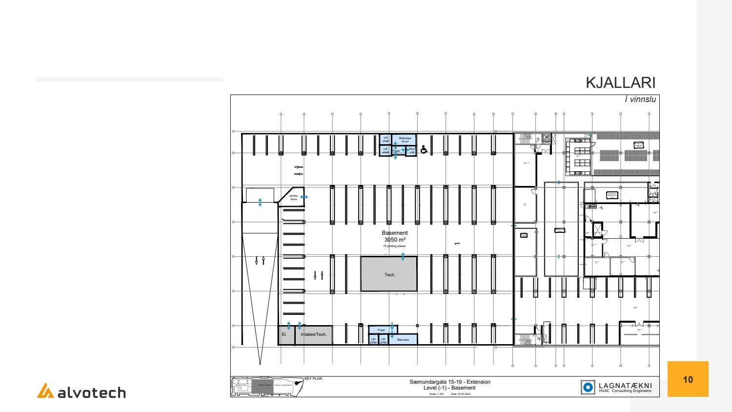
Lögð fram að nýju umsókn ASK Arkitekta ehf. dags. 10. júní 2020, ásamt bréfi dags. 10. júní 2020 varðandi breytingu á deiliskipulagi Háskóla Íslands, Vísindagarða vegna lóðarinnar nr. 15-19 við Sæmundargötu (lóð A). Í breytingunni felst að sunnan við hús er komið fyrir bílarampa niður í bílakjallara. Í bílakjallara undir nýbyggingu er gert ráð fyrir 73 bílastæðum sem eingöngu eru hugsuð fyrir rafbíla. Samtals er fjöldi bílastæða í bílageymslu neðanjarðar 100 talsins, samkvæmt uppdr. ASK Arkitekta ehf. dags. 10. júní 2020, breytt 2. október. Einnig er lagt fram skýringarhefti ódags. Tillagan var grenndarkynnt frá 26. júní 2020 til og með 24. júlí 2020. Eftirtaldir sendu athugasemdir: Magnús Orri Einarsson f.h. Félagsstofnun Stúdenta/Stúdentagarða dags. 24. júní 2020 og 14. júlí 2020 og samþykki Félagsstofnunar Stúdenta dags. 16. september 2020. Einnig lögð fram umsögn skipulagsfulltrúa dags. 2. október 2020.
Svar

Samþykkt með vísan til umsagnar skipulagsfulltrúa dags. 2. október 2020 sbr. a-liður 1. gr. viðauka 1.1. við samþykkt um stjórn Reykjavíkurborgar og fundarsköp borgarstjórnar, um fullnaðarafgreiðslur skipulags- og samgönguráðs án staðfestingar borgarráðs.

Gestir
Hildur Gunnarsdóttir verkefnastjóri tekur sæti á fundinum undir þessum lið.