Gerðarbrunnur 44 (05.054.7)
Síðast Samþykkt á fundi fyrir 5 árum síðan.
Aðilar sem vísað er í
Málsaðilar
Gísli Gíslason
Skipulags- og samgönguráð nr. 72
Samþykkt
Fyrirspurn
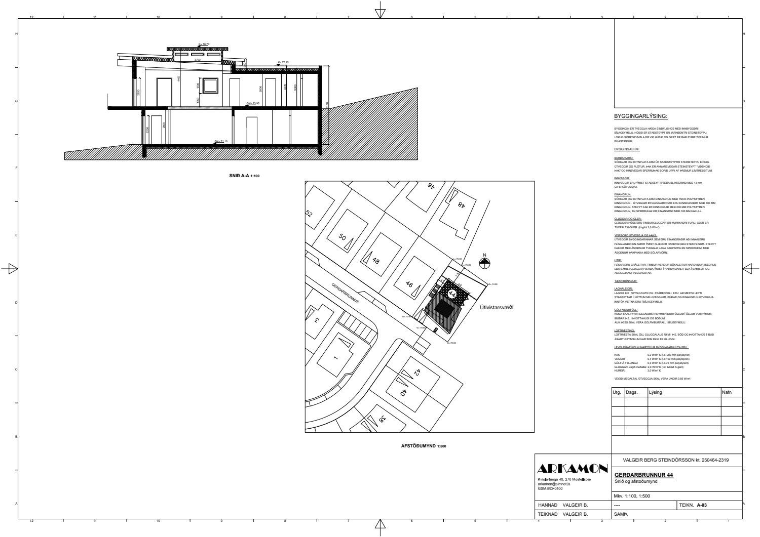
Lagt er fram málskot dags. 1. mars 2020 vegna neikvæðrar afgreiðslu skipulagsfulltrúa frá 18. október 2020 um að gera auka íbúð á neðri hæð hússins á lóð nr. 44 við Gerðarbrunn, stækka bílageymslu/geymslu, fjarlægja stiga á milli hæða og færa inngang efri hæðar á vesturhlið, samkvæmt uppdr. Arkamon ehf. ódags. Einnig er lögð fram umsögn skipulagsfulltrúa dags. 8. maí 2020.
Svar

Umsögn skipulagsfulltrúa, dags. 8. maí 2020, samþykkt.

Gestir
Hrafnhildur Sverrisdóttir verkefnastjóri tekur sæti á fundinum undir þessum lið.
113 Reykjavík
Landnúmer: 206060 → skrá.is
Hnitnúmer: 10095754
Kaupskrá 1 færslur
47.200.000 kr. 07.03.2013
Einbýli · 295 m² · 4 herb. · bygg. 2009