Týsgata 8 (01.181.0)
Síðast tekið fyrir á fundi fyrir 6 árum síðan.
Aðilar sem vísað er í
Málsaðilar
Skipulags- og samgönguráð nr. 61
Annað
Fyrirspurn
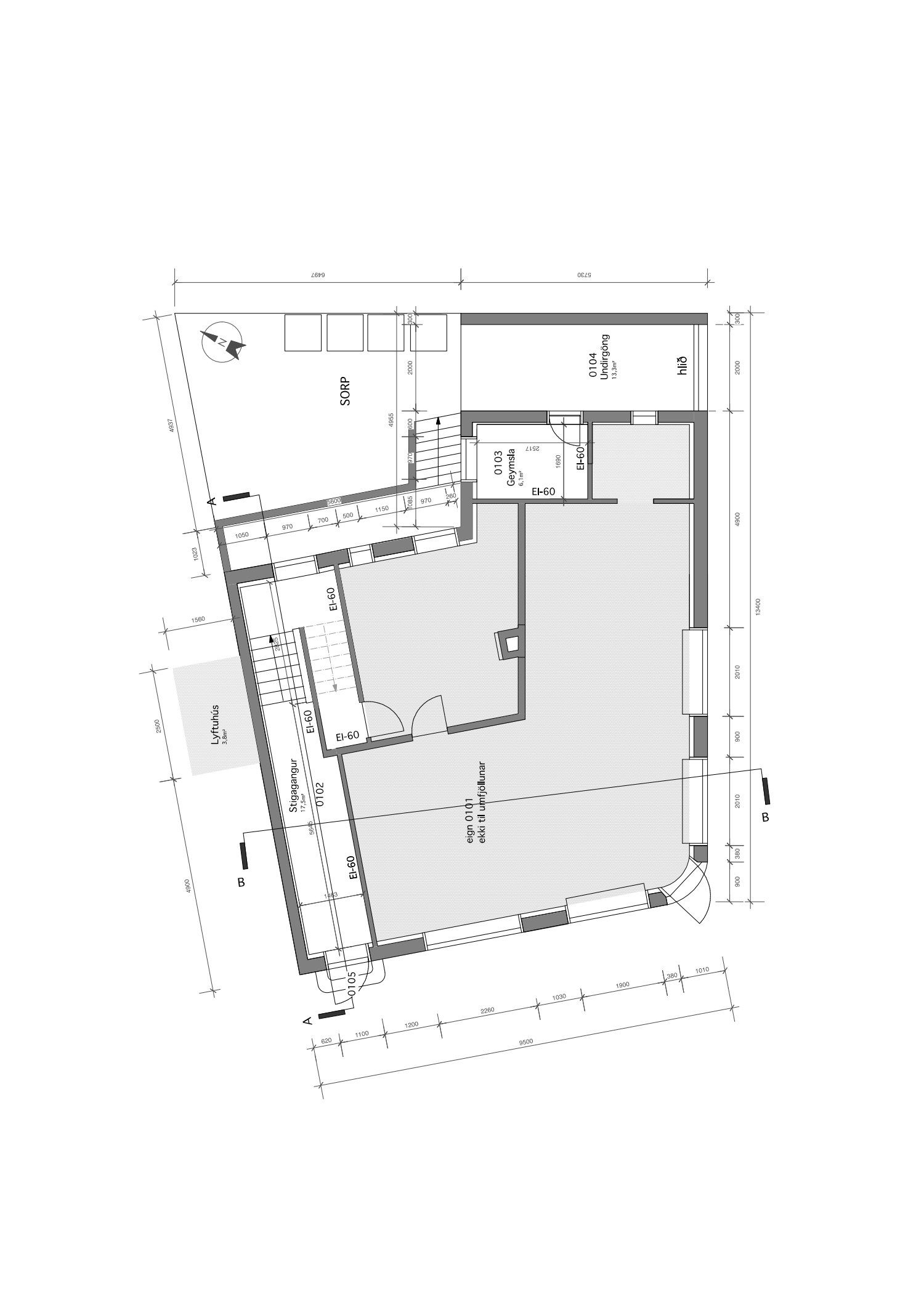
Lagt fram málskot Gamma ehf. dags. 20. nóvember 2019 og 16. janúar 2020 vegna neikvæðrar afgreiðslu skipulagsfulltrúa frá 18. janúar 2019 um að setja lyftuhús utan á gafl hússins á lóð nr. 8 við Týsgötu, samkvæmt uppdr. Meter teiknistofu ehf. dags. 8. apríl 2018.  Staðfest er niðurstaða skipulagsfulltrúa sbr. umsögn dags. 18. janúar 2019.
Svar

Flokkur fólksins bókar:

Gestir
Hrafnhildur Sverrisdóttir verkefnastjóri tekur sæti á fundinum undir þessum lið.
101 Reykjavík
Landnúmer: 101736 → skrá.is
Hnitnúmer: 10024514