Síðast tekið fyrir á fundi fyrir 5 árum síðan.
Skipulags- og samgönguráð nr. 66
Vísað til borgarráðs
Fyrirspurn
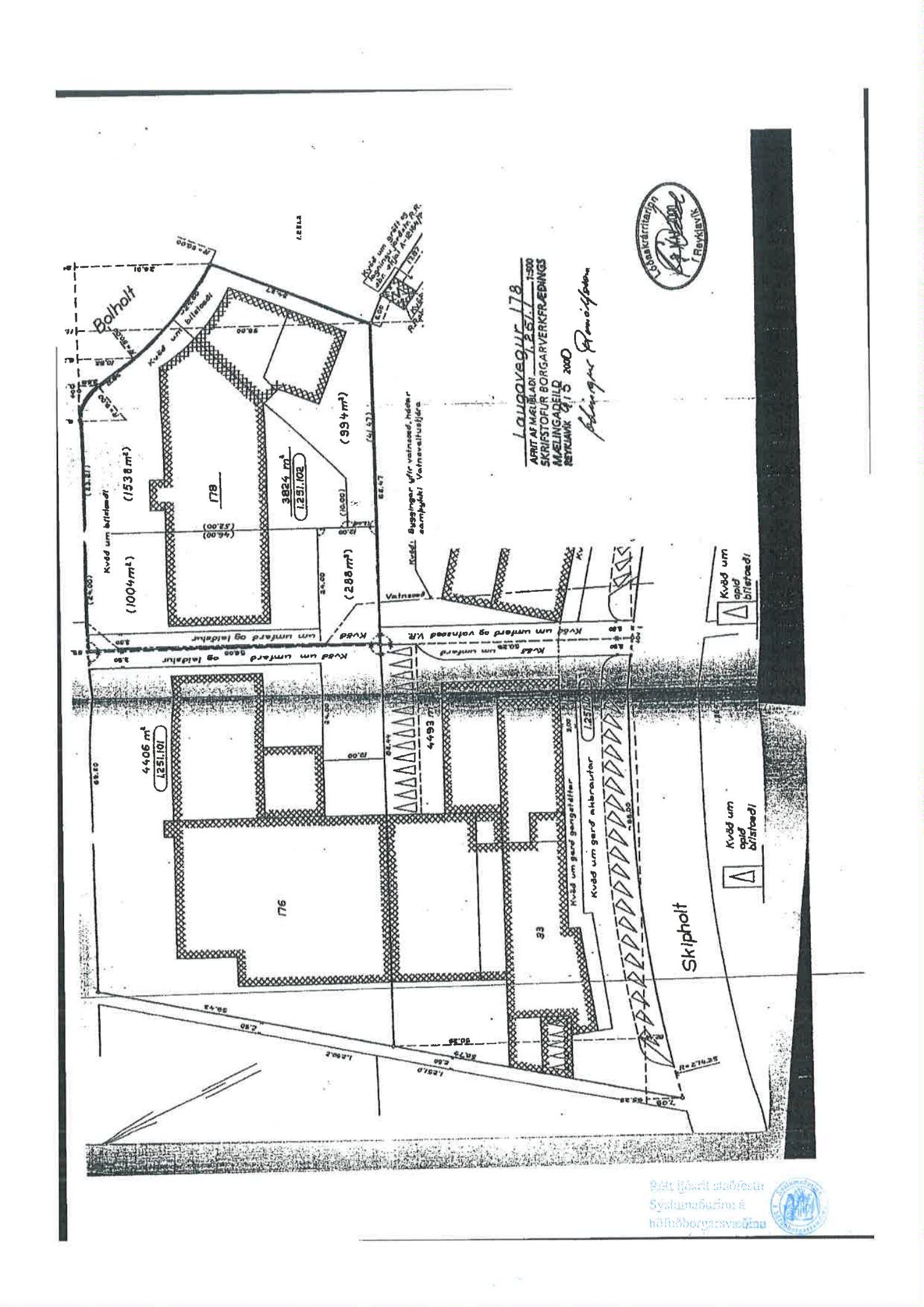
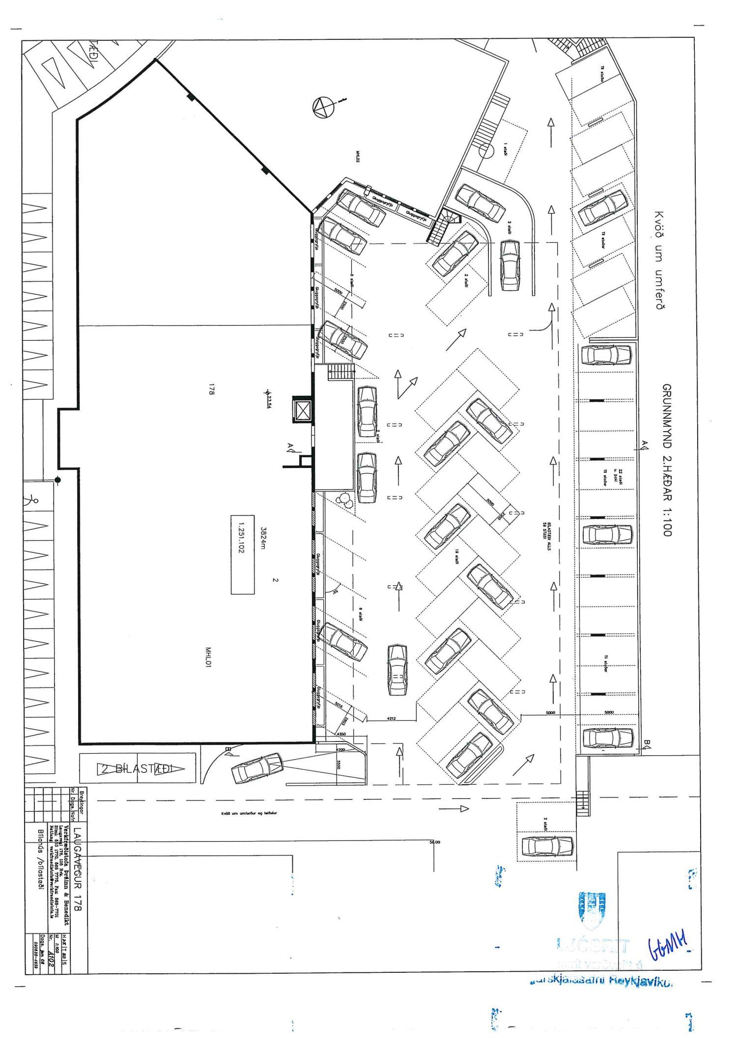
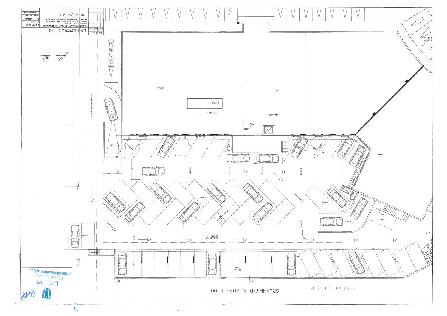
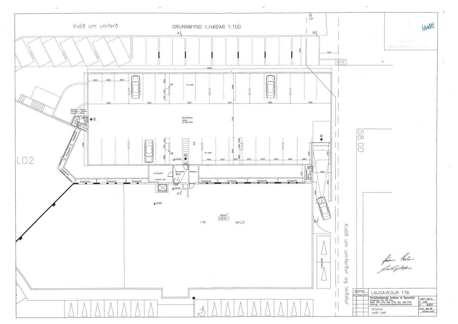
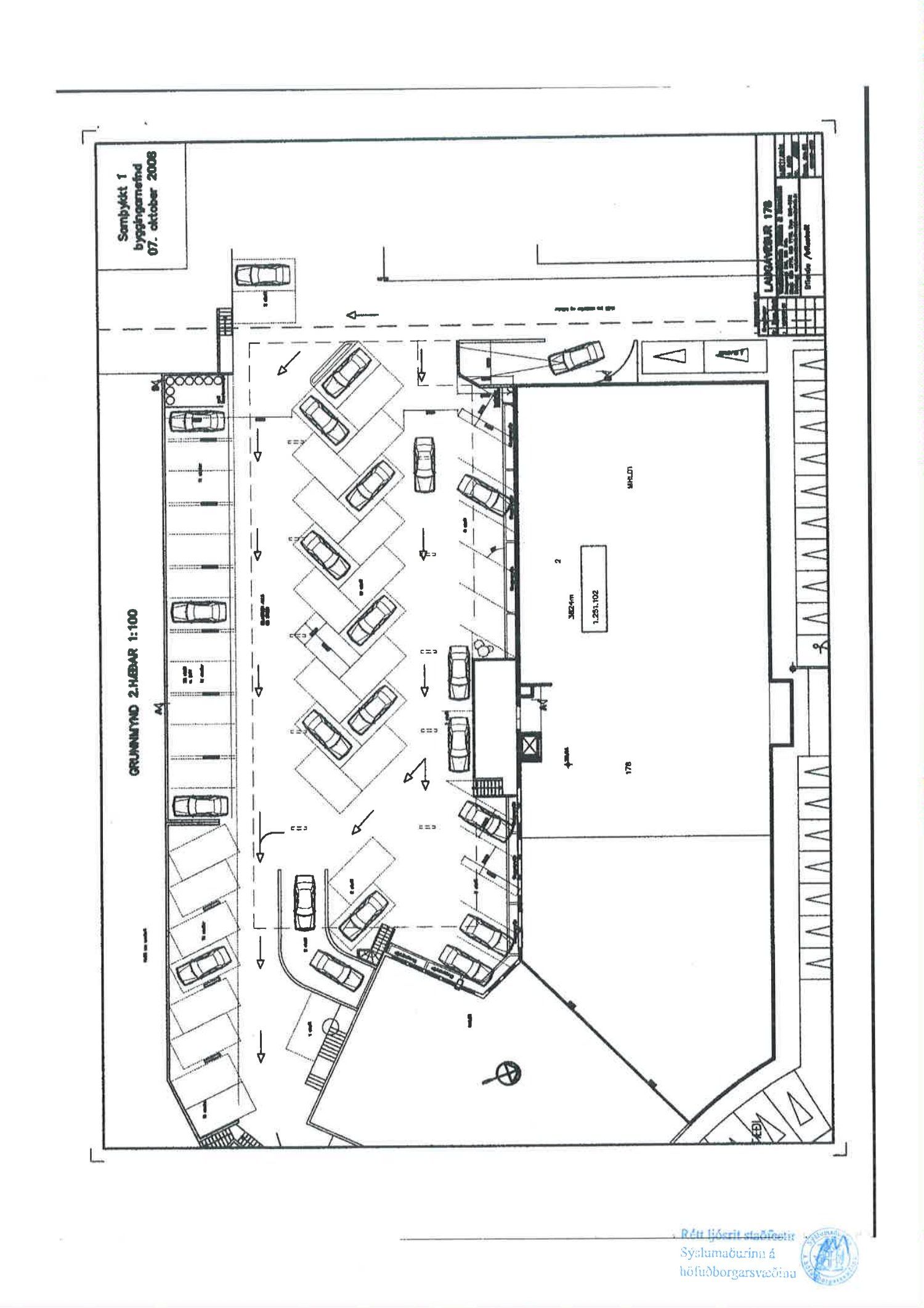
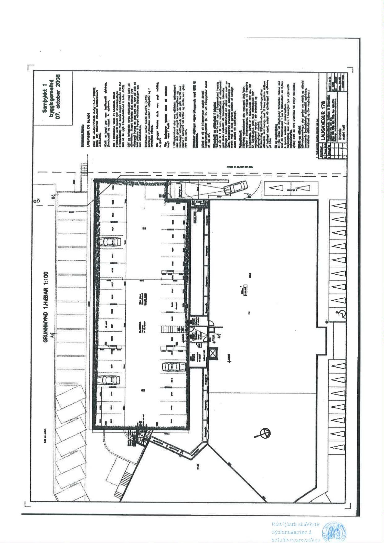
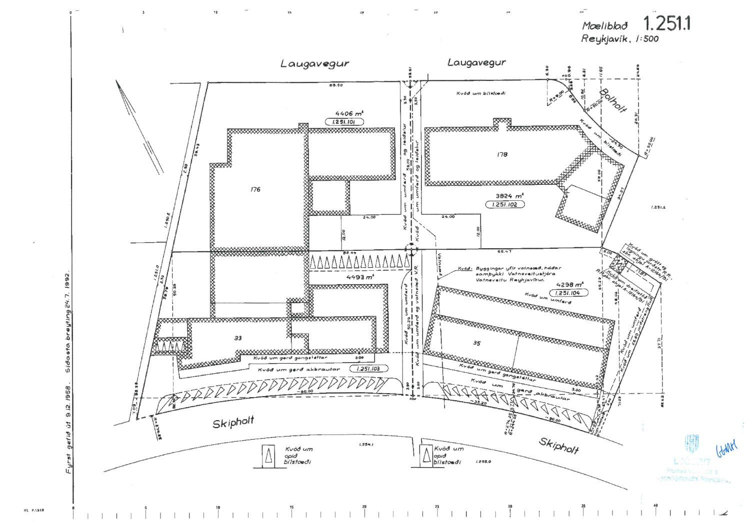
Að lokinni auglýsingu er lögð fram að nýju tillaga Yrki arkitekta ehf. að nýju deiliskipulagi fyrir reit sem afmarkast af Laugavegi til norðurs, Bolholti til austurs, Skipholti til suðurs og Laugavegi 174 og Skipholti 31 til vesturs. Gert er ráð fyrir uppbyggingu á lóðinni Laugavegur 176 vegna fyrirhugaðs hótels, en aðrar lóðir á skipulagsreitnum verða skilgreindar sem óbreyttar lóðir þar sem núverandi ástand er óbreytt samkvæmt uppdráttum Yrki arkitekta ehf. dags. 6. september 2019 br. 3. mars 2020. Tillagan var auglýst frá 16. desember 2019 til og með 29. janúar 2020. Eftirtaldir aðilar sendu athugasemdir/umsögn: Ingibergur Sigurðsson dags. 15. janúar 2020, Local lögmenn f.h. Tannlækninga ehf., Tannheils ehf., Laser-Tannlæknastofu ehf og Sigfúsar Haraldssonar dags. 24. janúar 2020, Logos lögmannsþjónusta f.h. Vallhólma ehf., Dyrhólma ehf. og Hraunhólma ehf. dags. 28. janúar 2020, Veitur dags. 28. janúar 2020 og Íbúaráð Miðborgar og Hlíða dags. 29. janúar 2020. Einnig er lögð fram eignaskiptayfirlýsingu vegna bílastæðahúss dags. 18. desember 2008 og framsal samkomulags frá Vallhólma til Dyrhólma til byggingar bílastæðahúss dags. 26. janúar 2009. Einnig er lögð fram umsögn skipulagsfulltrúa dags. 6. mars 2020.
Svar

Samþykkt sbr. 3. mgr. 41. gr. skipulagslaga nr. 123/2010. 
Vísað til borgarráðs.

Gestir
Björn Ingi Edvardsson verkefnastjóri tekur sæti á fundinum undir þessum lið.