Síðast tekið fyrir á fundi fyrir 6 árum síðan.
Skipulags- og samgönguráð nr. 33
Samþykkt
Fyrirspurn
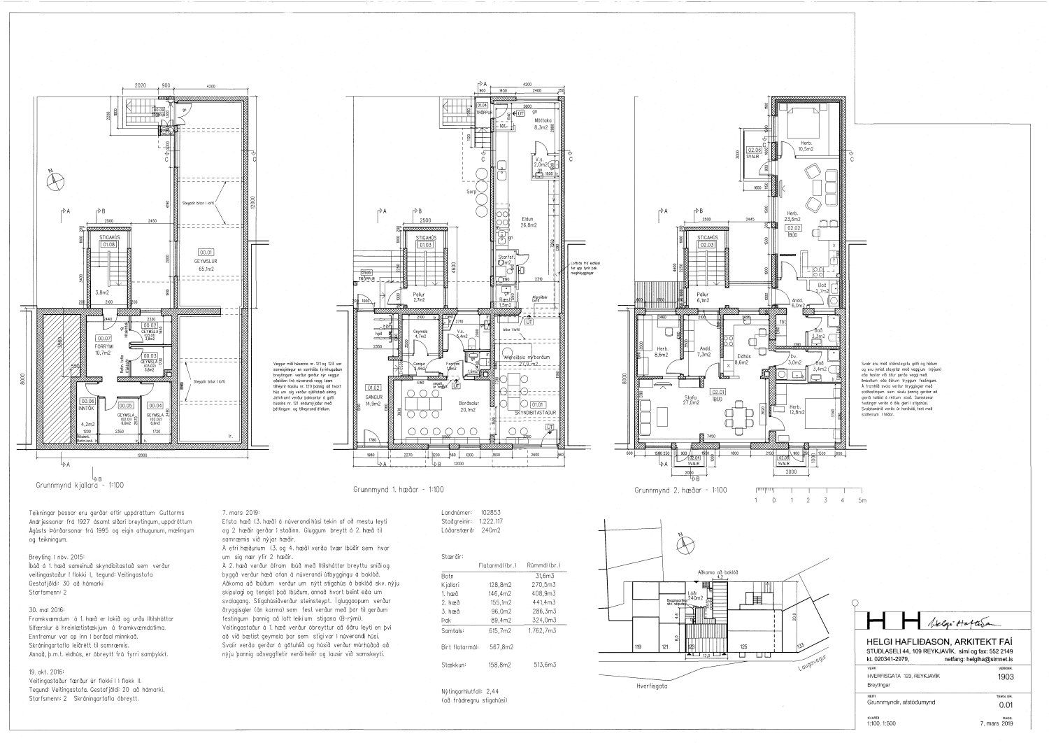
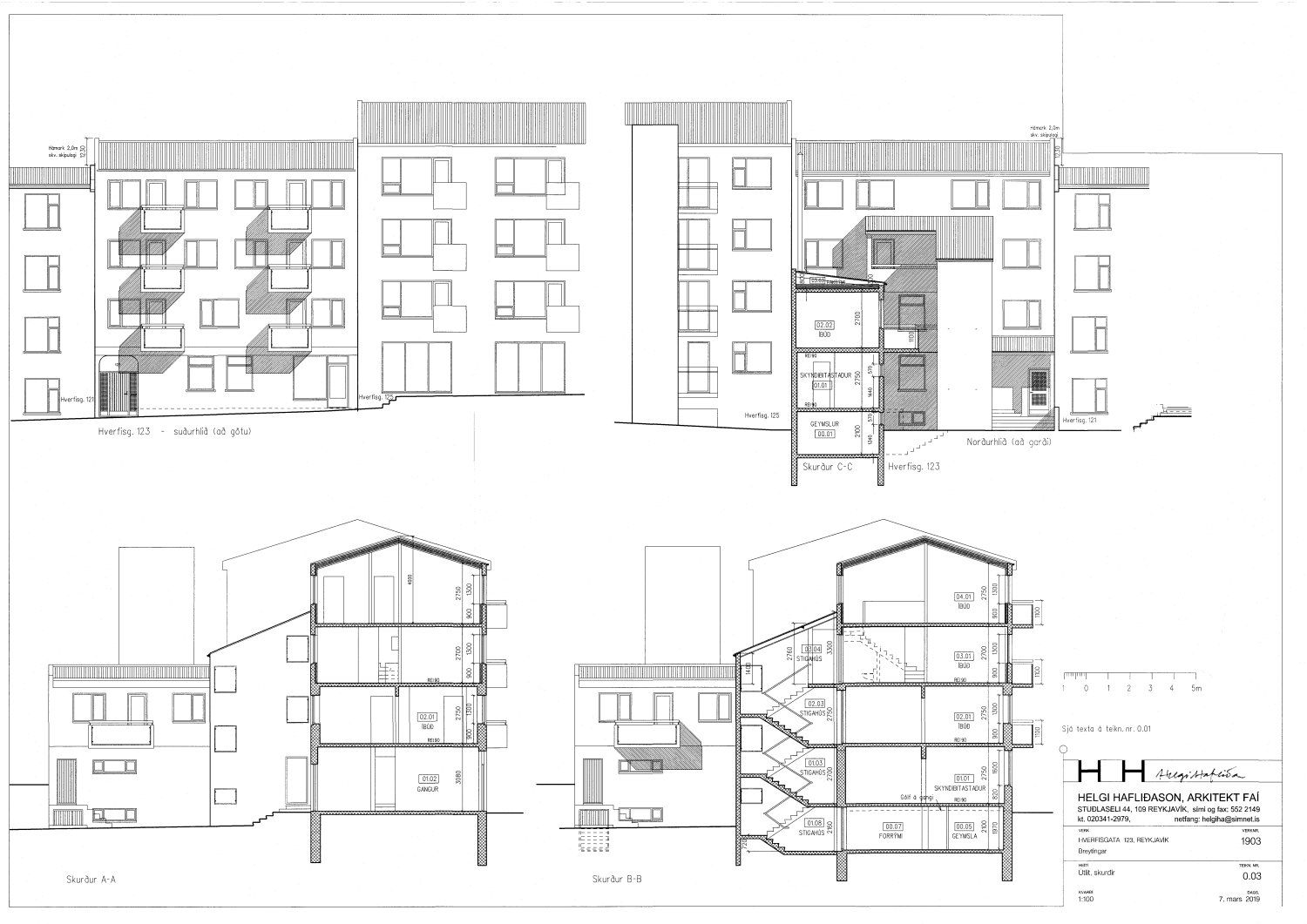
Lögð fram tillaga umhverfis- og skipulagssviðs dags. 22. mars 2019 að breytingu á skilmálum deiliskipulags Skúlagarðsreits vestari, Hlemmur, vegna lóðarinnar nr. 123 við Hverfisgötu. Í breytingunni felst breyting á nýtingarhlutfalli.
Svar

Samþykkt með vísan til a liðar 1. gr. í viðauka 1.1 um fullnaðarafgreiðslur umhverfis- og skipulagsráðs (nú skipulags- og samgönguráðs) án staðfestingar borgarráðs. 
Samþykkt að falla frá grenndarkynningu þar sem breyting á deiliskipulagi varðar ekki hagsmuni annarra en umsækjanda með vísan til 2.ml. 3. mgr. 44. gr. skipulagslaga nr. 123/2010.

Gestir
Ingvar Jón Bates Gíslason verkefnisstjóri tekur sæti á fundinum undir þessum lið.
105 Reykjavík
Landnúmer: 102853 → skrá.is
Hnitnúmer: 10022435
Kaupskrá 4 færslur
53.000.000 kr. 08.03.2007
Fjölbýli · 233 m² · bygg. 1930
53.000.000 kr. 08.03.2007
Fjölbýli · 233 m² · 2 herb. · bygg. 1930
53.000.000 kr. 08.03.2007
Fjölbýli · 233 m² · 2 herb. · bygg. 1930
16.500.000 kr. 21.03.2006
Atvinnuhúsnæði · 165 m² · bygg. 1930