Þingholtsstræti 25 (01.183.3)
Síðast tekið fyrir á fundi fyrir 6 árum síðan.
Aðilar sem vísað er í
Málsaðilar
Skipulags- og samgönguráð nr. 33
Frestað
Fyrirspurn
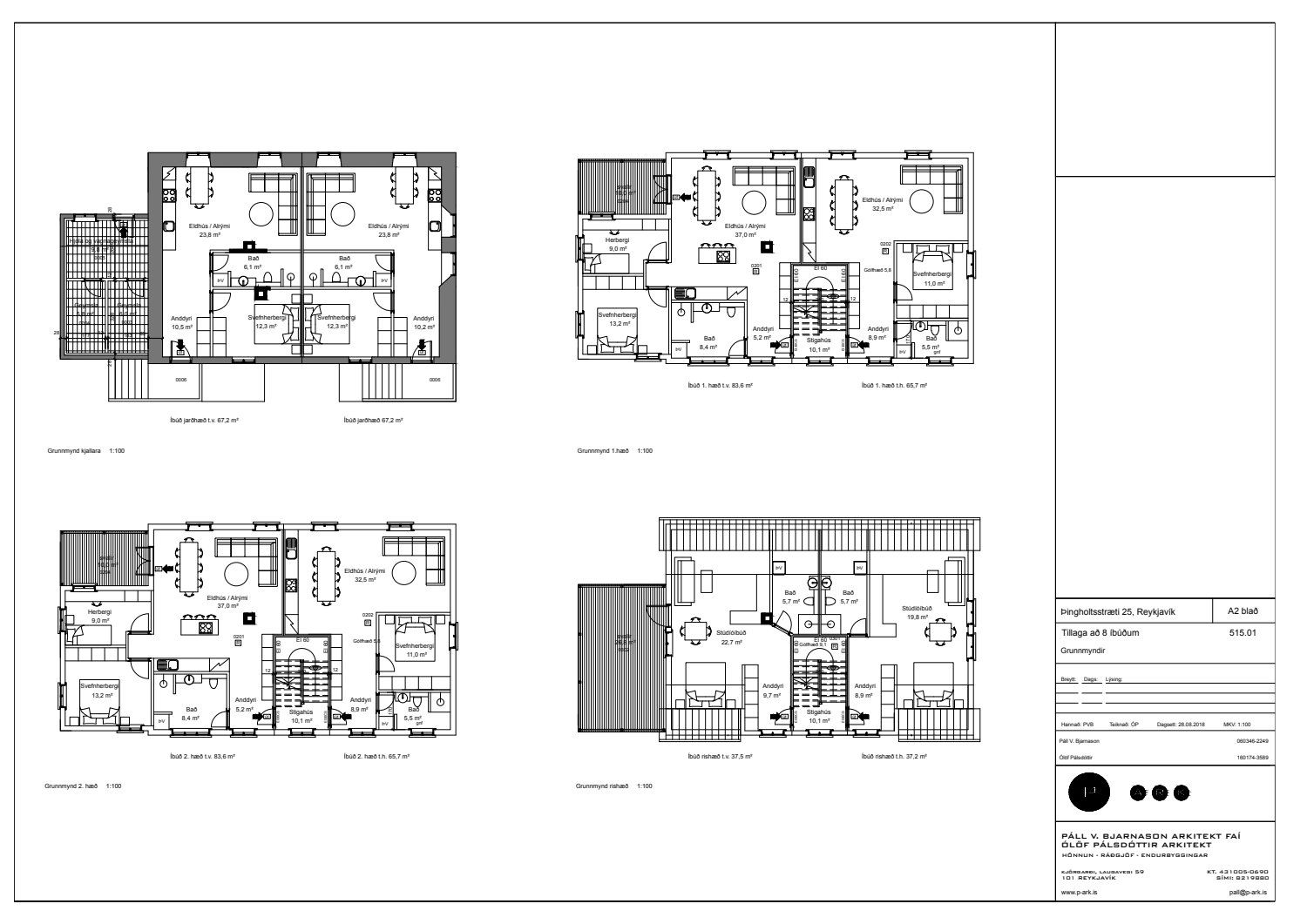
Lagt fram málskot P ARK teiknistofu sf dags. 18. febrúar 2019 vegna neikvæðrar afgreiðslu skipulagsfulltrúa frá 14. desember 2018 um breytingu á deiliskipulagi Grundarstígsreits vegna lóðarinnar nr. 25 við Þingholtsstræti sem felst í viðbygging við suðurgafl núverandi húss verði stækkuð, vestursvalir verði stækkaðar, íbúðum fjölgað, fyrirhugaður göngustígur að almenningsgarði frá Spítalastíg verði felldur niður o.fl. samkvæmt uppdr. P ARK teiknistofu sf. dags. 28. ágúst 2018. Einnig er lagt fram bréf P ARK teiknistofu dags. 6. mars 2018.
Svar

Frestað.

101 Reykjavík
Landnúmer: 101954 → skrá.is
Hnitnúmer: 10016139
Kaupskrá 1 færslur
220.000.000 kr. 21.06.2017
Atvinnuhúsnæði · 563 m² · bygg. 1884