Síðast tekið fyrir á fundi fyrir 6 árum síðan.
Skipulags- og samgönguráð nr. 29
Annað
Fyrirspurn
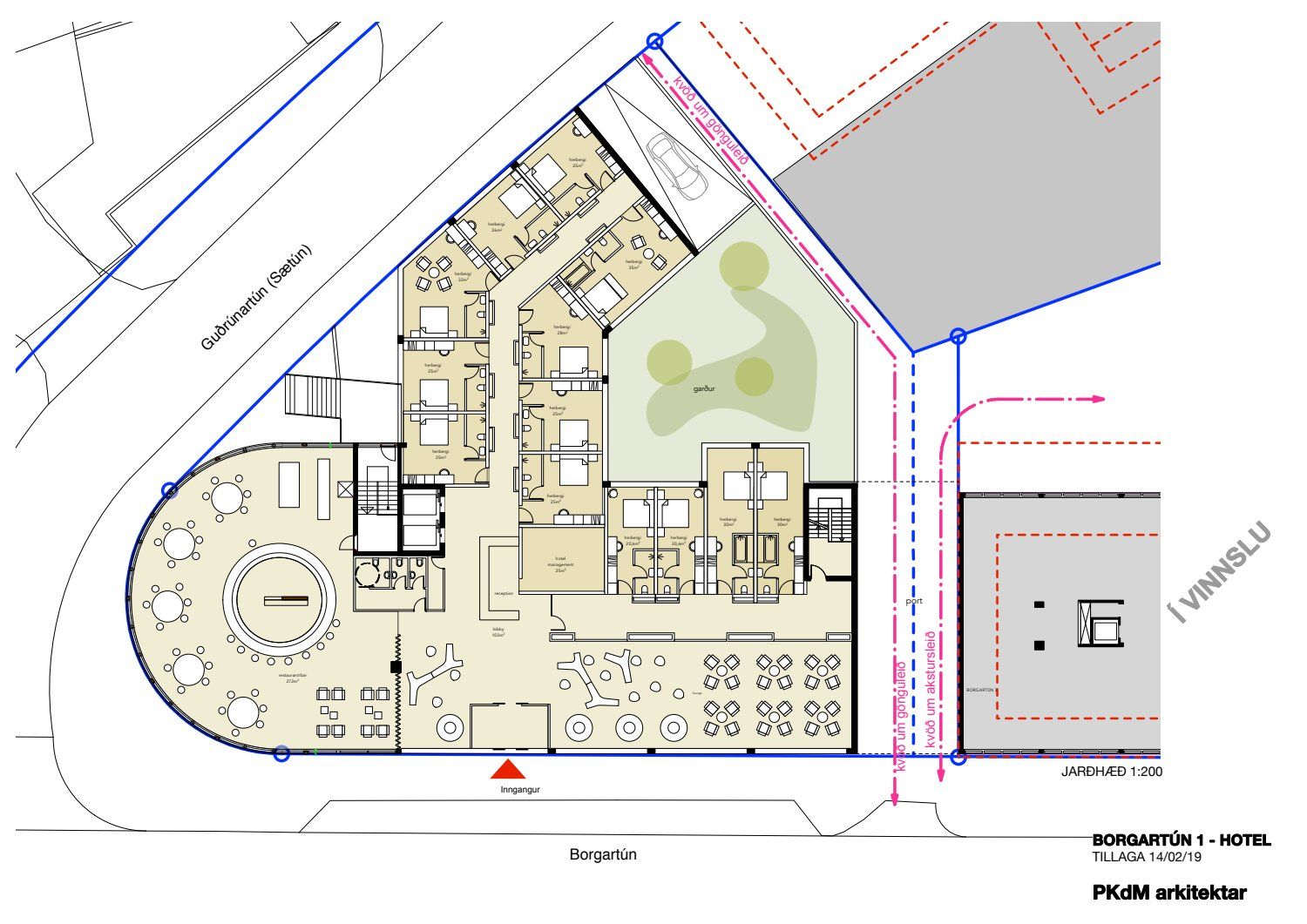
Lögð fram umsókn PKdM Arkitekta ehf. dags. 7. desember 2018 ásamt béfi dags. 14. febrúar 2019 varðandi breytingu á deiliskipulagi Borgartúnsreits vegna lóðaranna nr. 1 og 3 við Borgartún. Í breytingunni felst stækkun lóðarinnar byggingarreits nr. 1 til austurs, aukið byggingarmagn, hækkun hámarkshæðar og breytingu á bílastæðakröfu. Lóð nr. 3 minnkar sem nemur stækkun lóðarinnar nr. 1 við Borgartún, samkvæmt uppdr. PKdM Arkitekta ehf. dags. 14. febrúar 2019. Einnig er lagt fram skuggavarp dags. 18. október 2018.  Samþykkt að auglýsa framlagða tillögu, skv. 1. mgr. 41. gr. sbr. 1. mgr. 43.gr. skipulagslaga nr. 123/2010. Vísað til borgarráðs.
Svar

Kl. 11:01 víkur Eyþór Laxdal Arndals af fundi, Katrín Atladóttir tekur sæti á fundinum á sama tíma, þá var einnig búið að kynna lið nr, 15 í dagskránni Hagkvæmt húsnæði.

Gestir
Sólveig Sigurðardóttir verkefnisstjóri tekur sæti á fundinum undir þessum lið.