Síðast tekið fyrir á fundi fyrir 7 árum síðan.
Skipulags- og samgönguráð nr. 32
Vísað til borgarráðs
Fyrirspurn
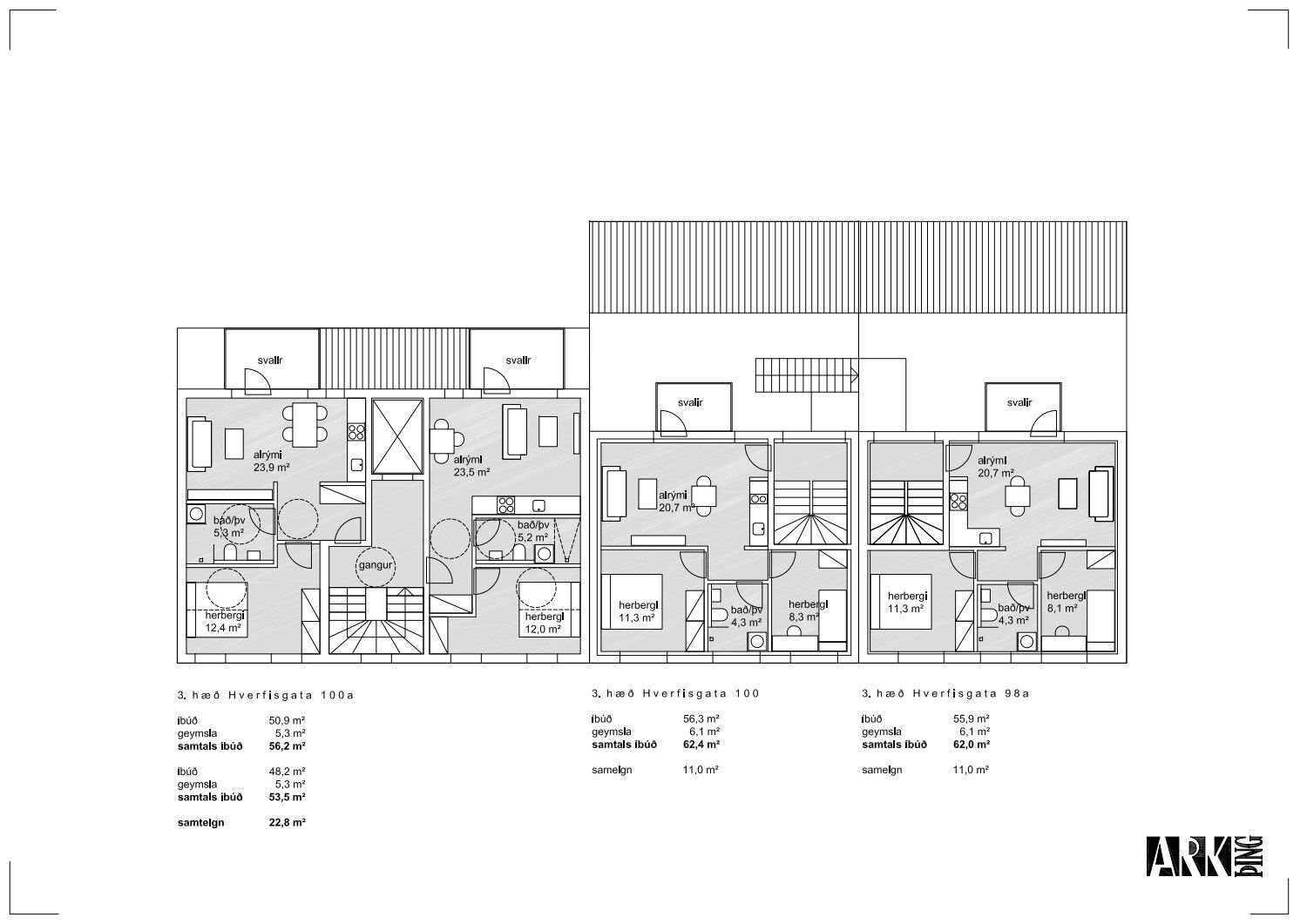
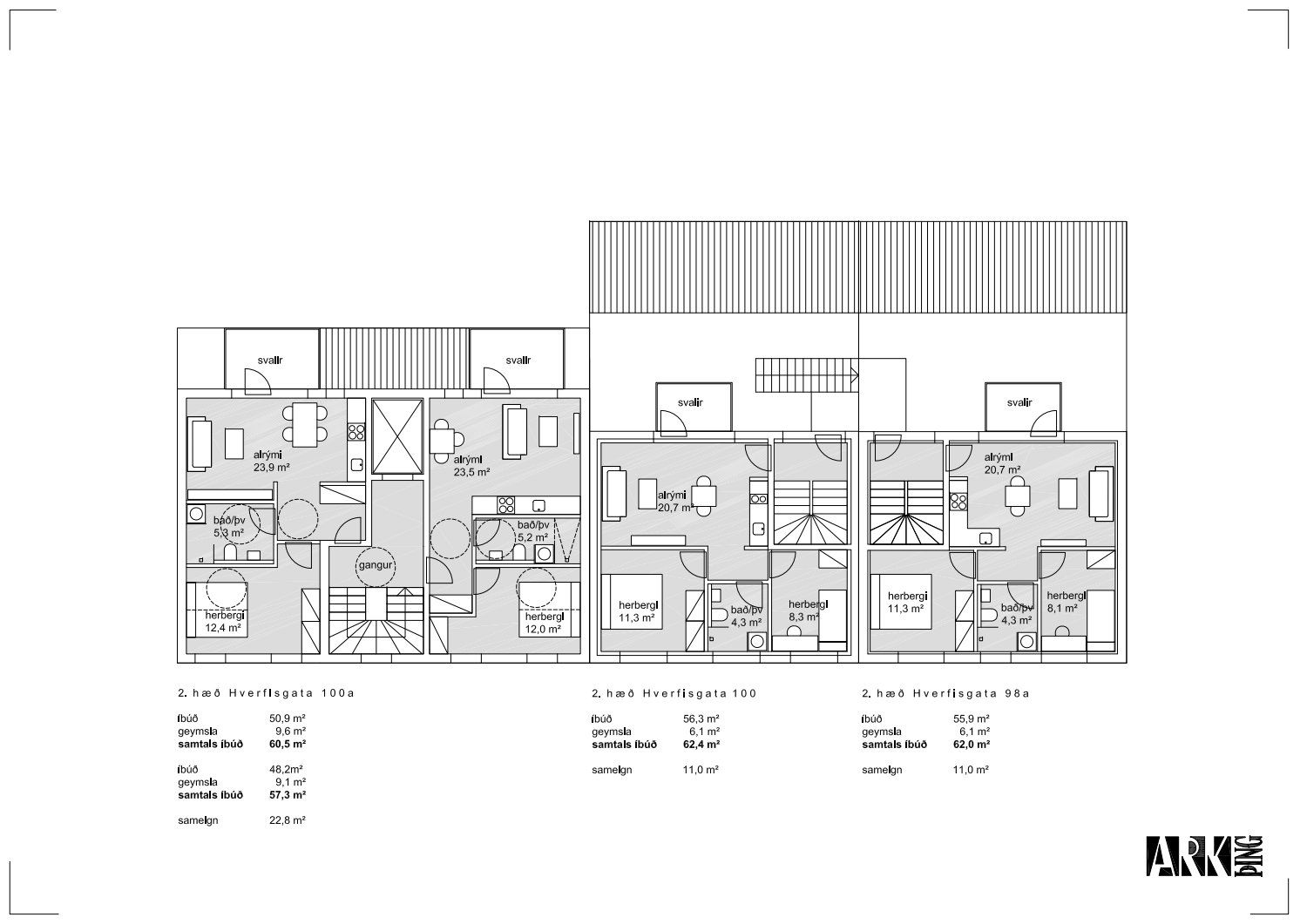
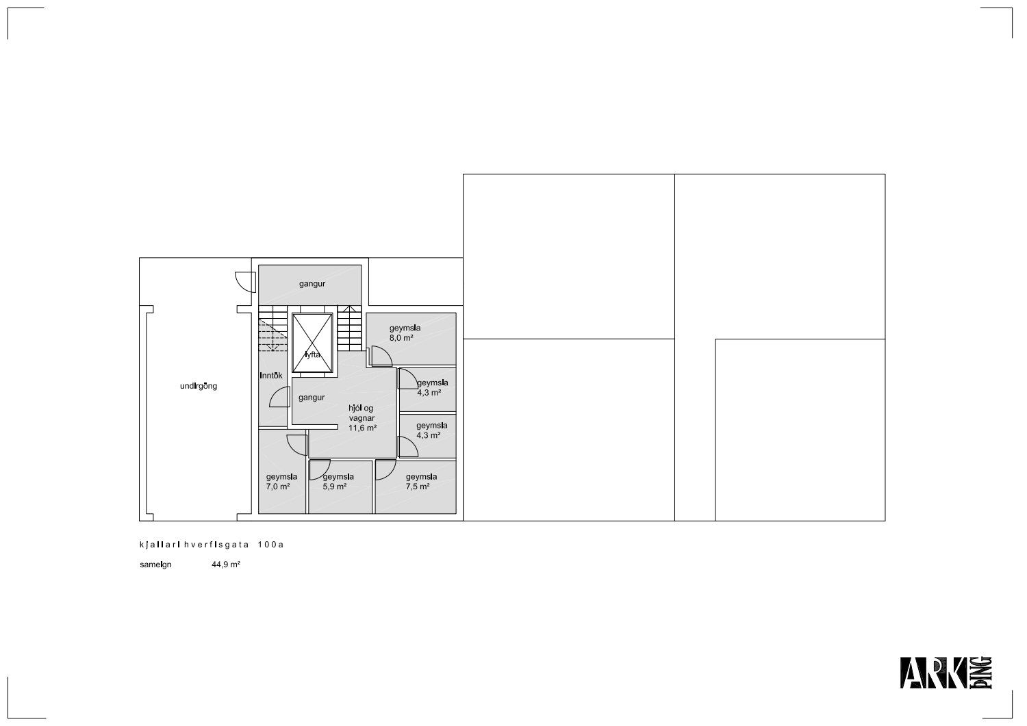
Lögð fram umsókn Helga Mars Hallgrímssonar dags. 5. desember 2018 varðandi breytingu á deiliskipulagi reits 1.174.1 vegna lóðanna nr. 98A, 100 og 100A við Hverfisgötu. Í breytingunni felst að ekki er lengur heimilt að rífa húsin að Hverfisgötu 98A og 100, en heimilt verður að hækka þau um eina hæð og ris. Í hvoru húsi má gera ráð fyrir einni íbúð á hverri hæð, allt að 4 íbúðum í hvoru húsi. Kvöð verður um aðkomu gangandi um undirgöng á Hverfisgötu 98A að baklóð. Heimilt verður að rífa núverandi hús að Hverfisgötu 100A og byggja í staðinn nýtt hús á lóðinni, kjallara, 3 hæðir og ris, með allt að 6 íbúðum af mismunandi stærðum. Heimilt verður að byggja svalir til suðurs allt að 1,6 m að dýpt. Á jarðhæðum má gera ráð fyrir íbúðum og því er ekki lengur skilyrði að vera þar með verslunar- eða þjónustustarfsemi, samkvæmt uppdr. Arkþings ehf. dags. 12. mars 2019. Einnig er lagt fram tillöguhefti ódags.
Svar

Samþykkt að auglýsa framlagða tillögu, skv. 1. mgr. 41. gr. sbr. 1. mgr. 43.gr. skipulagslaga nr. 123/2010.
Vísað til borgarráðs.

Gestir
Margrét Þormar verkefnisstjóri tekur sæti á fundinum undir þessum lið.
101 Reykjavík
Landnúmer: 101580 → skrá.is
Hnitnúmer: 10022410
Deiliskipulag
Laugavegur, Barónsstígur, Hverfisgata, Snorrabraut, stgr. 1.174.1
Samþykkt 09.06.2005 · Deiliskipulag. Nýtt DSK