Brautarholt 8 (01.241.2)
Síðast tekið fyrir á fundi fyrir 6 árum síðan.
Málsaðilar
Skipulags- og samgönguráð nr. 54
Samþykkt
Fyrirspurn
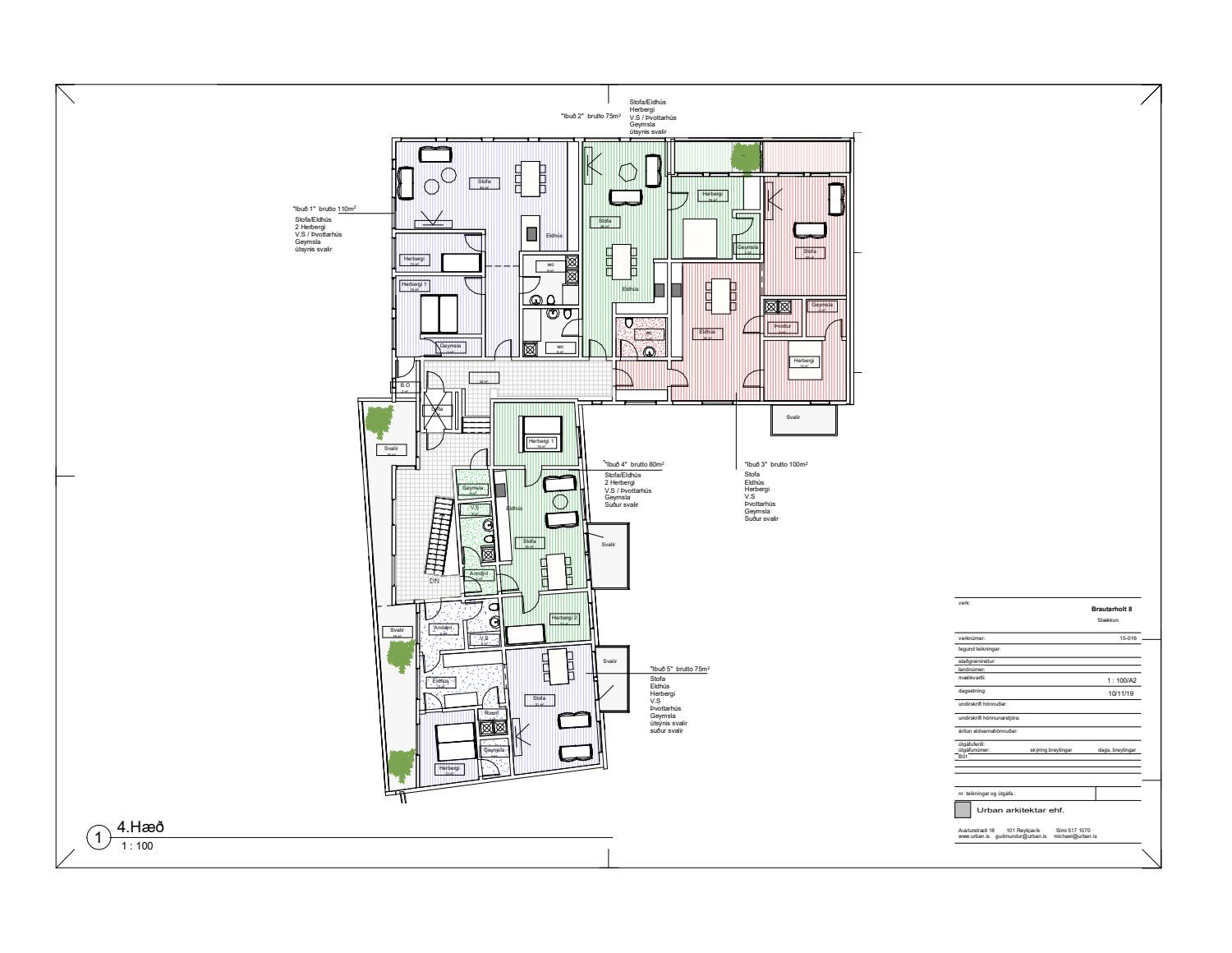
Lögð fram fyrirspurn Urban arkitekta ehf. dags. 30. nóvember 2018 ásamt greinargerð dags. 27. nóvember 2018 um hækkun hússins á lóð nr. 8 við Brautarholt úr þremur hæðum í fimm hæðir, samkvæmt uppdr. Urban arkitekta ehf. dags. 16. nóvember 2018, breytt 11. október 2019. Einnig er lögð fram umsögn skipulagsfulltrúa dags. 14. desember 2018. Lagt fram að nýju ásamt breyttum gögnum/tillögu 26. ágúst /11. október 2019, greinargerð dags. 21. október 2019 og umsögn skipulagsfulltrúa dags 25. október 2019.
Svar

Jákvætt með vísan til umsagnar skipulagsfulltrúa dags. 25. október 2019.

Gestir
Lilja Grétarsdóttir verkefnastjóri tekur sæti á fundinum undir þessum lið.
105 Reykjavík
Landnúmer: 103023 → skrá.is
Hnitnúmer: 10007693
Kaupskrá 2 færslur
15.500.000 kr. 22.07.2016
Einbýli · 118 m² · 2 herb. · bygg. 1957
34.002.000 kr. 30.03.2016
Atvinnuhúsnæði · 188 m² · bygg. 1961