Síðast tekið fyrir á fundi fyrir 6 árum síðan.
Skipulags- og samgönguráð nr. 47
Annað
Fyrirspurn
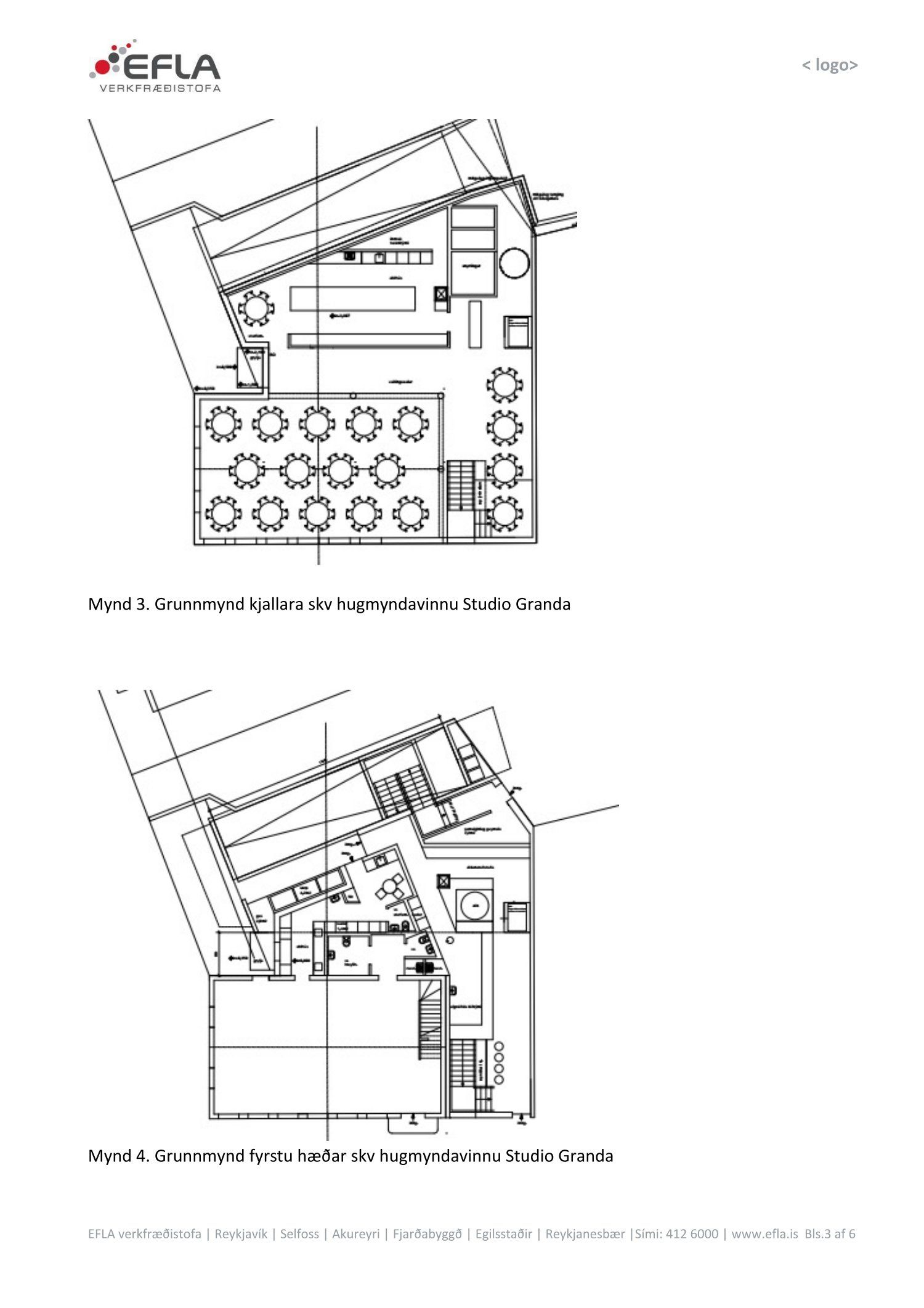
Að lokinni auglýsingu er lögð er fram að nýju umsókn Studio Granda ehf. dags. 3. maí 2018 varðandi breytingu á deiliskipulagi reits 1.140.5, Pósthússtrætisreits, vegna lóðarinnar nr. 8 við Lækjargötu. Í breytingunni felst m.a. að einnar hæðar bakbyggingar gamla hússins og skúr við gafl Lækjargötu 6b verði fjarlægðar og endurbyggðar að hluta, byggðar verði 2 hæðir og portbyggt ris með kvistum yfir innkeyrsluramp auk þess sem byggt verði upp að gafli Lækjargötu 6b. Gert er ráð fyrir kjallara undir gamla húsinu og nýbyggingu, samkvæmt deiliskipulags- og skuggavarpsuppdr. Studio Granda ehf. dags. 1. október 2018. Einnig er lögð fram útskrift úr fundargerð Minjastofnunar Íslands 3. ágúst 2016, minnisblað EFLU dags. 24. nóvember 2016 og Bréf Studio Granda ehf. dags. 1. október 2018. Jafnframt er lögð fram umsögn Minjastofnunar Íslands dags. 14. nóvember 2018 og bréf Studio Granda ehf. dags. 22. janúar 2019. Tillagan var auglýst frá 27. mars 2019 til og með 8. maí 2019. Eftirtaldir aðilar sendu athugasemdir: Haraldur Ingvarsson f.h. eiganda að Lækjargötu 6B dags. 29. apríl 2019 og Jón Örn Valsson, Magnús Steinþórsson og Eiríkur Óskarsson f.h. húsfélagsins Pósthússtræti 13 dags. 8. maí 2019. Einnig er lögð fram umsögn skipulagsfulltrúa dags. 5. september 2019. Samþykkt sbr. 1.mgr. 42 gr. skipulagslaga nr. 123/2010, með þeim breytingum sem koma fram í umsögn skipulagsfulltrúa dags. 5. september 2019 Vísað til borgarráðs
Svar

Áheyrnarfulltrúi Miðflokksins bókar: 

Gestir
Guðlaug Erna Jónsdóttir verkefnastjóri tekur sæti á fundinum undir þessum lið.
Kaupskrá 6 færslur
8.330.000 kr. 18.03.2013
Fjölbýli · 115 m² · 2 herb. · bygg. 1924
5.000.000 kr. 15.04.2011
Sumarhús · 20 m² · bygg. 2003
4.600.000 kr. 27.02.2011
Atvinnuhúsnæði · 270 m² · bygg. 1928
4.600.000 kr. 27.02.2011
Bílskúr/skúr · 270 m² · bygg. 1948
4.600.000 kr. 27.02.2011
Atvinnuhúsnæði · 270 m² · bygg. 1924
… og 1 til viðbótar