Síðast tekið fyrir á fundi fyrir 6 árum síðan.
Skipulags- og samgönguráð nr. 29
Vísað til borgarráðs
Fyrirspurn
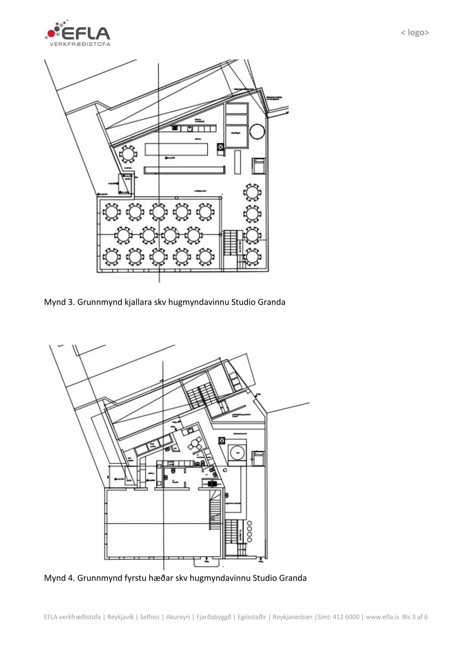
Lögð er fram umsókn Studio Granda ehf. dags. 3. maí 2018  varðandi breytingu á deiliskipulagi reits 1.140.5, Pósthússtrætisreits, vegna lóðarinnar nr. 8 við Lækjargötu. Í breytingunni felst m.a. að einnar hæðar bakbyggingar gamla hússins og skúr við gafl Lækjargötu 6b verði fjarlægðar og endurbyggðar að hluta, byggðar eru 2 hæðir og portbyggt ris með kvistum yfir  innkeyrsluramp auk þess sem byggt er upp að gafli Lækjargötu 6b. Gert er ráð fyrir kjallara undir gamla húsinu og nýbyggingu, samkvæmt deiliskipulags- og skuggavarpsuppdr. Studio Granda ehf. dags. 1. október. Jafnframt er lögð fram umsögn Minjastofnunar Íslands dags. 14. nóvember 2018 og bréf Studio Granda ehf. dags. 22. janúar 2019.
Svar

Samþykkt að auglýsa framlagða tillögu, skv. 1. mgr. 41. gr. sbr. 1. mgr. 43.gr. skipulagslaga nr. 123/2010.
Vísað til borgarráðs.

Gestir
Guðlaug Erna Jónsdóttir verkefnisstjóri tekur sæti á fundinum undir þessum lið.
Kaupskrá 6 færslur
8.330.000 kr. 18.03.2013
Fjölbýli · 115 m² · 2 herb. · bygg. 1924
5.000.000 kr. 15.04.2011
Sumarhús · 20 m² · bygg. 2003
4.600.000 kr. 27.02.2011
Atvinnuhúsnæði · 270 m² · bygg. 1928
4.600.000 kr. 27.02.2011
Bílskúr/skúr · 270 m² · bygg. 1948
4.600.000 kr. 27.02.2011
Atvinnuhúsnæði · 270 m² · bygg. 1924
… og 1 til viðbótar