Kleppsvegur 150-152
Síðast Samþykkt á fundi fyrir 4 árum síðan.
Skipulags- og samgönguráð nr. 109
Samþykkt
Fyrirspurn
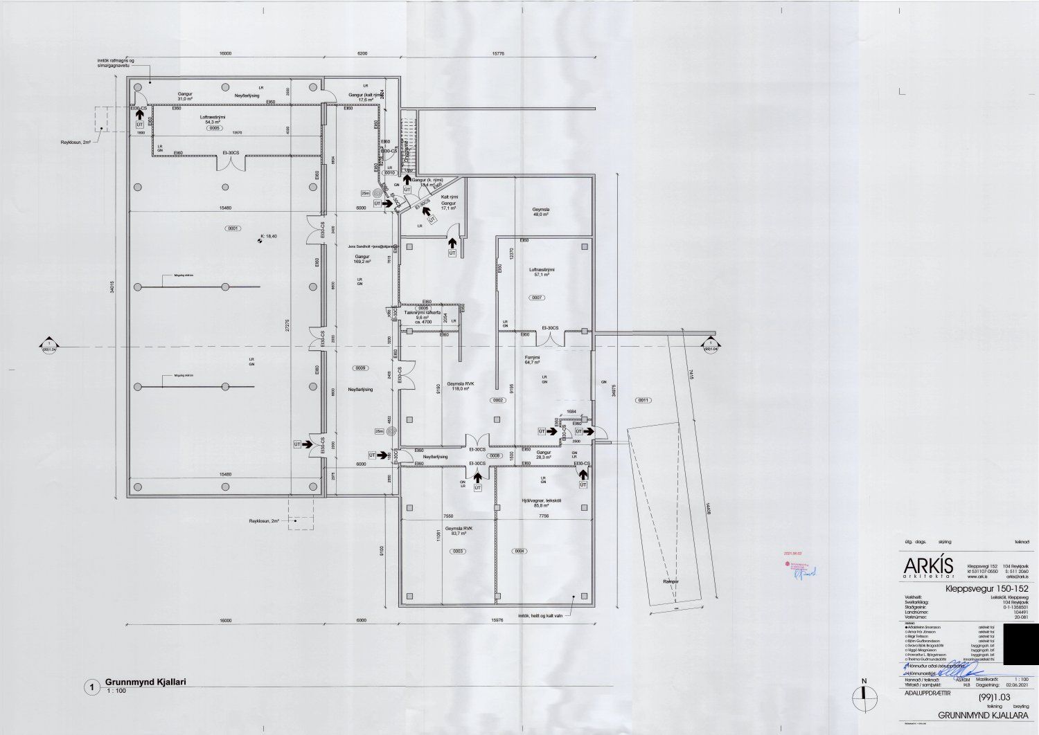
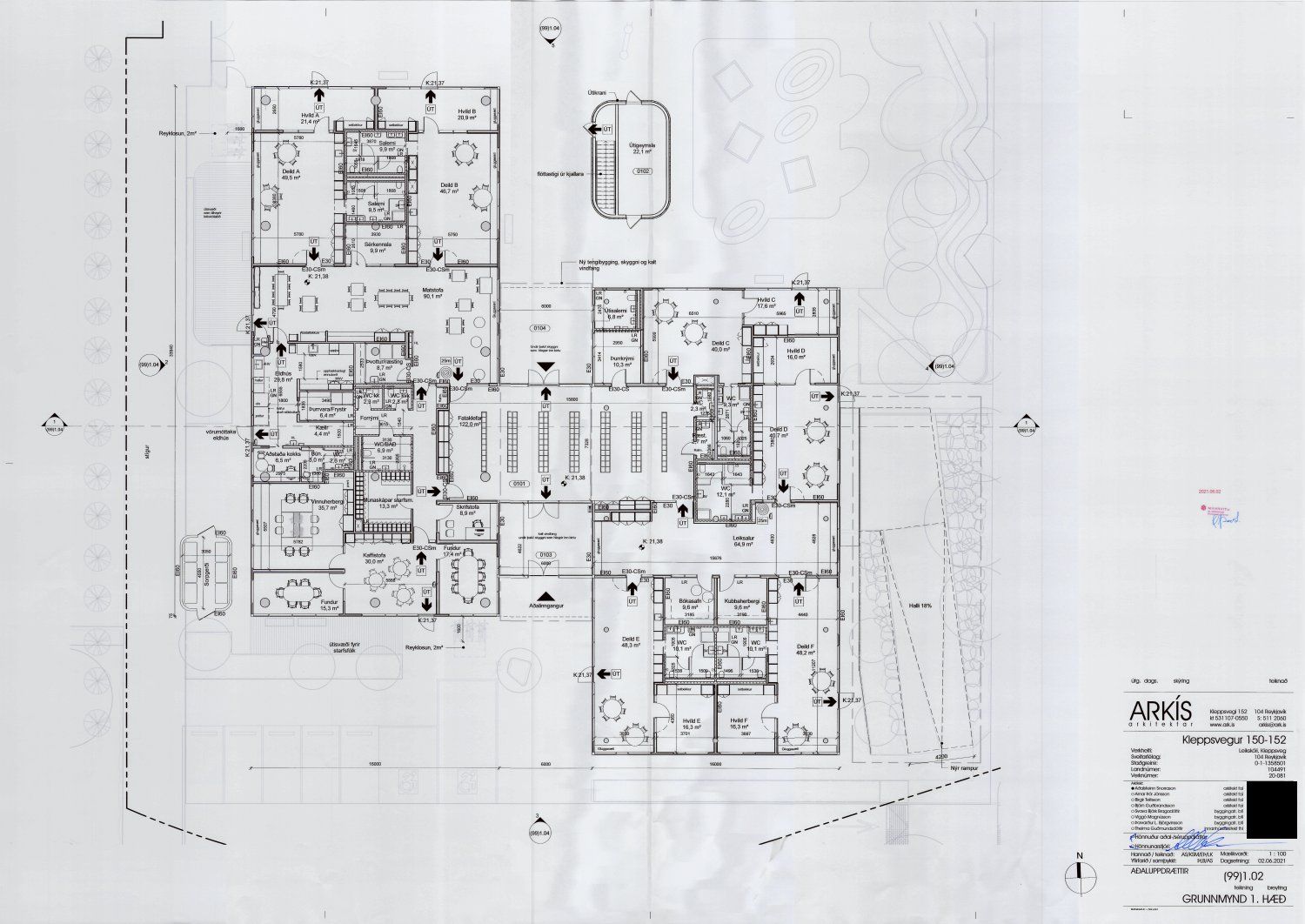
Að lokinni grenndarkynningu er lagt fram að erindi frá afgreiðslufundi byggingarfulltrúa frá 2. mars 2021 þar sem sótt er um leyfi til að byggja tengibyggingu og nýja aðkomu að kjallara, gera nýja útveggi úr álgluggakerfi, breyta innra skipulagi og innrétta 6 deilda leikskóla í húsum nr. 150 og 152 á lóð nr. 150-152 við Kleppsveg. Erindi var grenndarkynnt frá 24. mars 2021 til og með 27. apríl 2021. Eftirtaldir sendu athugasemdir: Björg Sonde Þráinsdóttir dags. 8. apríl 2021, íbúar og eigendur húsnæðis að Sæviðarsundi 19 dags. 27. apríl 2021 og Marteinn Sindri Svavarsson, Finnur P. Fróðason og Anton Sigurðsson dags. 27. apríl 2021. Einnig er lögð fram umsögn skipulagsfulltrúa dags. 21. júní 2021.
Svar

Samþykkt með vísan til umsagnar skipulagsfulltrúa dags. 21. júní 2021.Vísað til fullnaðarafgreiðslu byggingarfulltrúa.

Gestir
Ólafur Melsted verkefnastjóri tekur sæti á fundinum undir þessum lið.
Bókanir og gagnbókanir
  • Samfylkingin, Viðreisn, Píratar
    Við fögnum nýjum leikskóla fyrir 130 börn hjá Kleppsvegi og Holtavegi. Verkefnið er hluti af verkefninu Brúum bilið þar sem verið er að fjölga leikskólaplássum um 1000 á örfáum árum.
  • Flokkur fólksins
    Fulltrúi Flokks fólksins fagnar því að koma eigi þarna nýr leikskóli enda mikil þörf á því. Nokkrar áhyggjur eru þó af því að verið er að gera upp eldra húsnæði sem er að hluta til skemmt. Halda á innra skipulagi á efri hæð að Kleppsvegi 152 að mestu óbreyttu. Fram hefur komið í gögnum að erfitt er að halda í innveggi sökum nauðsynlegra lagfæringa á gólfum. Búið er að staðfesta rakaskemmdir í húsnæði sem ekki er búið að bregðast við að fullu. Sýni hafa staðfest myglu- og örveruvöxt í húsnæðinu. Ekki er mikið um sleppistæði og er gengið út frá því að foreldrar komi með og sæki börn sín gangandi. Fulltrúi Flokks fólksins telur að ályktun af þessu tagi sé óraunhæf. Foreldrar sem eru að fara beint í vinnu eftir að hafa farið með börn sín á leikskóla koma margir akandi enda er vinnustaður þeirra ekki í göngufæri. Fulltrúi Flokks fólksins hefur nokkrar efasemdir um að þetta sé hagkvæmara (bæði fjárhagslega og umhverfislega) en að rífa og byggja alveg upp á nýtt. Kostnaður vegna óvissuþáttar er sem dæmi mjög hár eða um 129.000.000.
104 Reykjavík
Landnúmer: 104491 → skrá.is
Hnitnúmer: 10013257
Kaupskrá 3 færslur
14.600.000 kr. 14.10.2014
Atvinnuhúsnæði · 243 m² · bygg. 1967
300.000 kr. 28.12.2006
Atvinnuhúsnæði · 1079 m² · bygg. 1967
3.000.000 kr. 20.12.2006
Atvinnuhúsnæði · 1079 m² · bygg. 1967