Aragata 3
Síðast Samþykkt á fundi fyrir 4 árum síðan.
Skipulags- og samgönguráð nr. 110
Samþykkt
Fyrirspurn
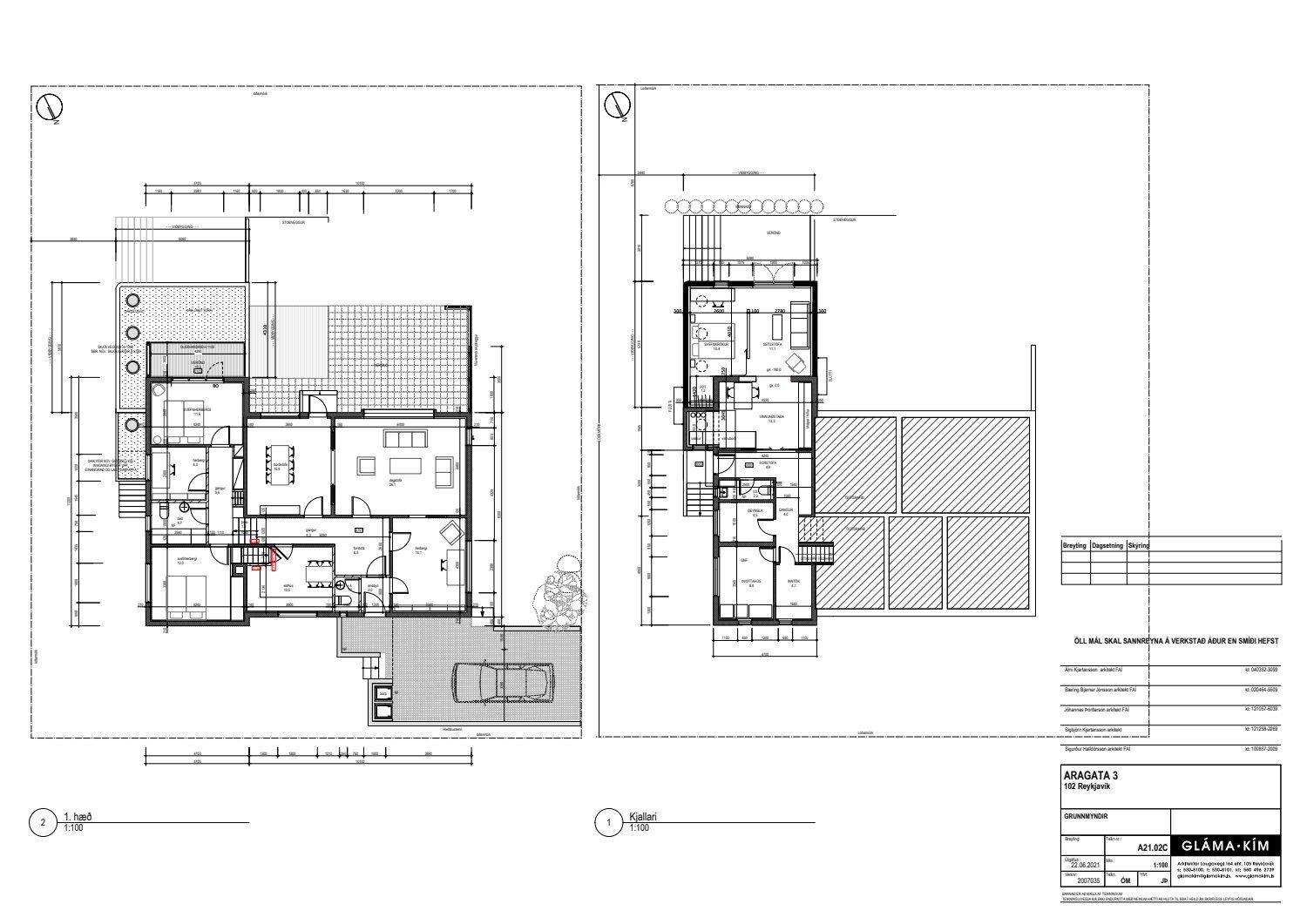
Að lokinni grenndarkynningu er lagt fram að nýju erindi frá afgreiðslufundi byggingarfulltrúa frá 26. janúar 2021 þar sem sótt er um leyfi til að stækka kjallara og gera svalir ofan á þaki hans á suðausturhorni einbýlishúss á lóð nr. 3 við Aragötu. Erindi var grenndarkynnt frá 15. febrúar 2021 til og með 15. mars 2021. Eftirtaldir sendu athugasemdir: Helgi Björnsson og Þóra Ellen Þórhallsdóttir dags. 14. mars 2021 og Ragnheiður Harðardóttir og Jón Scheving Thorsteinsson dags. 15. mars 2021. Einnig er lögð fram umsögn skipulagsfulltrúa dags. 2. júlí 2021, lagfærðir aðaluppdrættir Glámu/Kím ehf. dags. 22. júní 2021 og skuggavarp dags. 23. júní 2021.
Svar

Samþykkt með þeim breytingum sem koma fram í umsögn skipulagsfulltrúa dags. 2. júlí 2021. Fulltrúar Sjálfstæðisflokksins sitja hjá.Vísað til fullnaðarafgreiðslu byggingarfulltrúa.

Gestir
Sólveig Sigurðardóttir verkefnastjóri tekur sæti á fundinum undir þessum lið.