Langagerði 22 01.83.201.1
Síðast tekið fyrir á fundi fyrir 4 árum síðan.
Málsaðilar
Guðrún Hauksdóttir
Skipulags- og samgönguráð nr. 95
Annað
Fyrirspurn
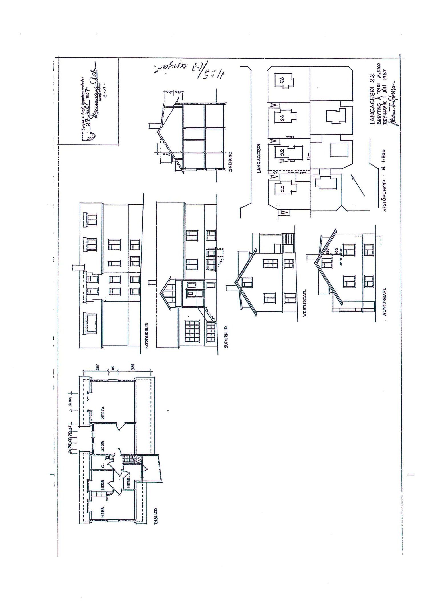
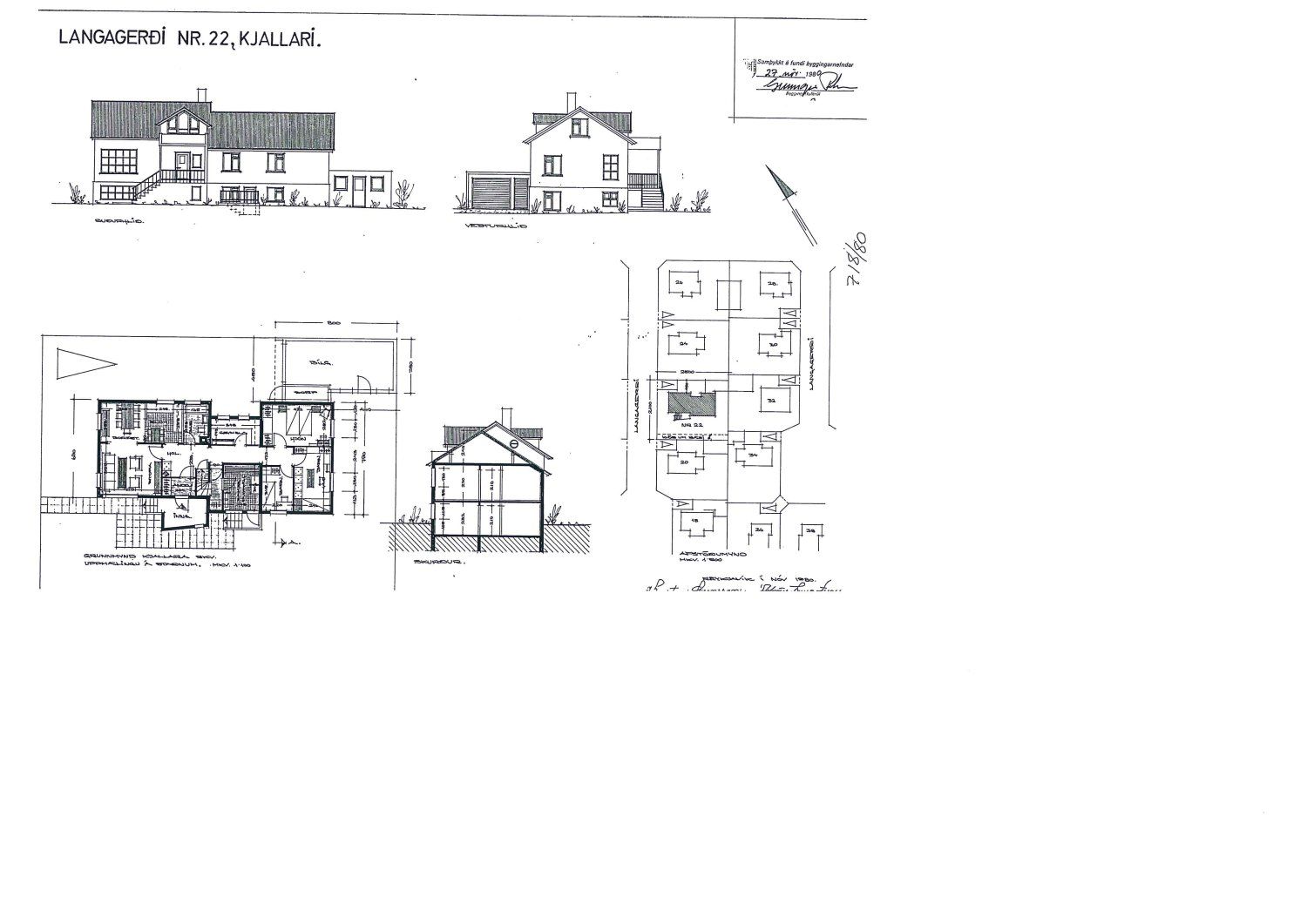
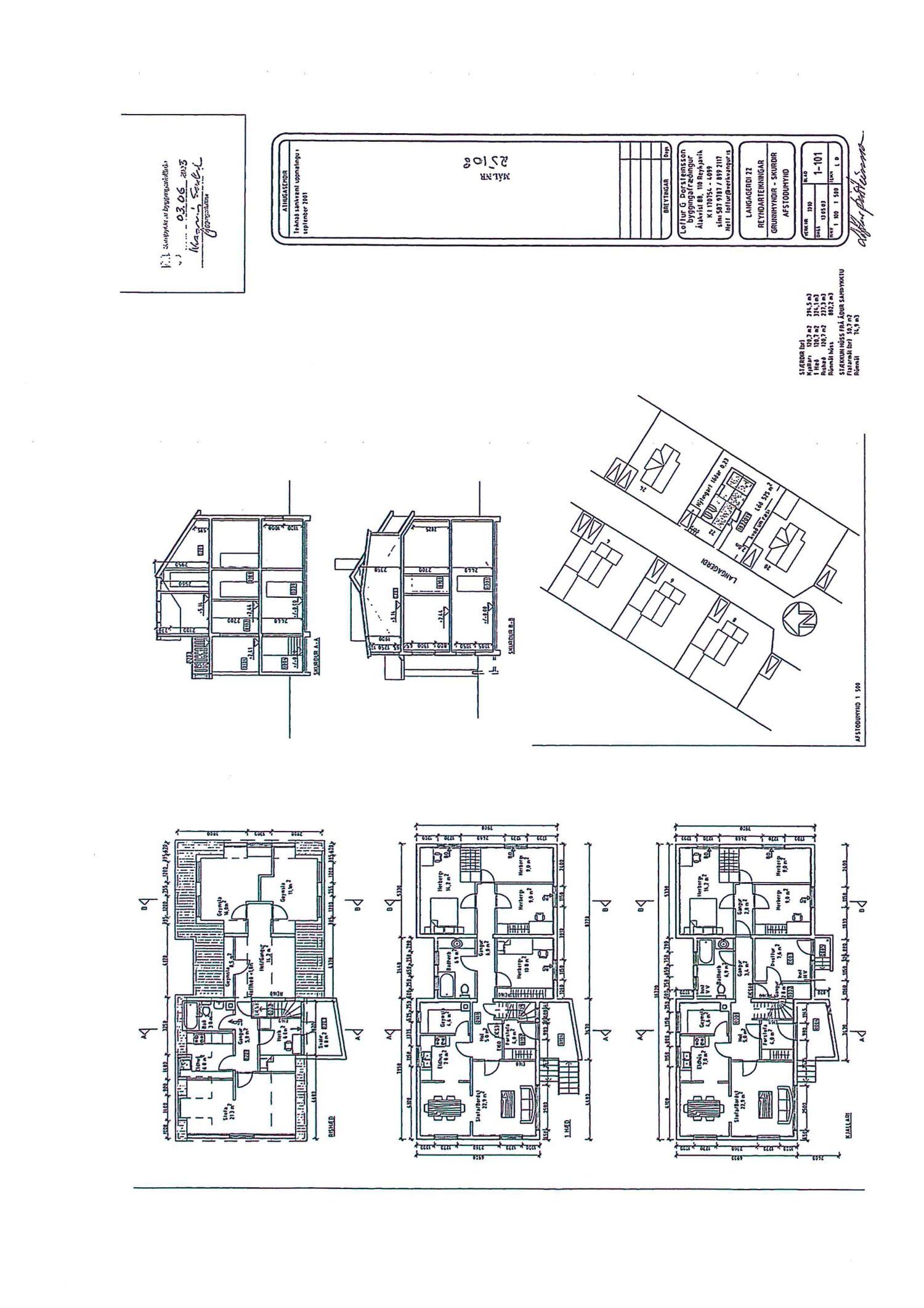
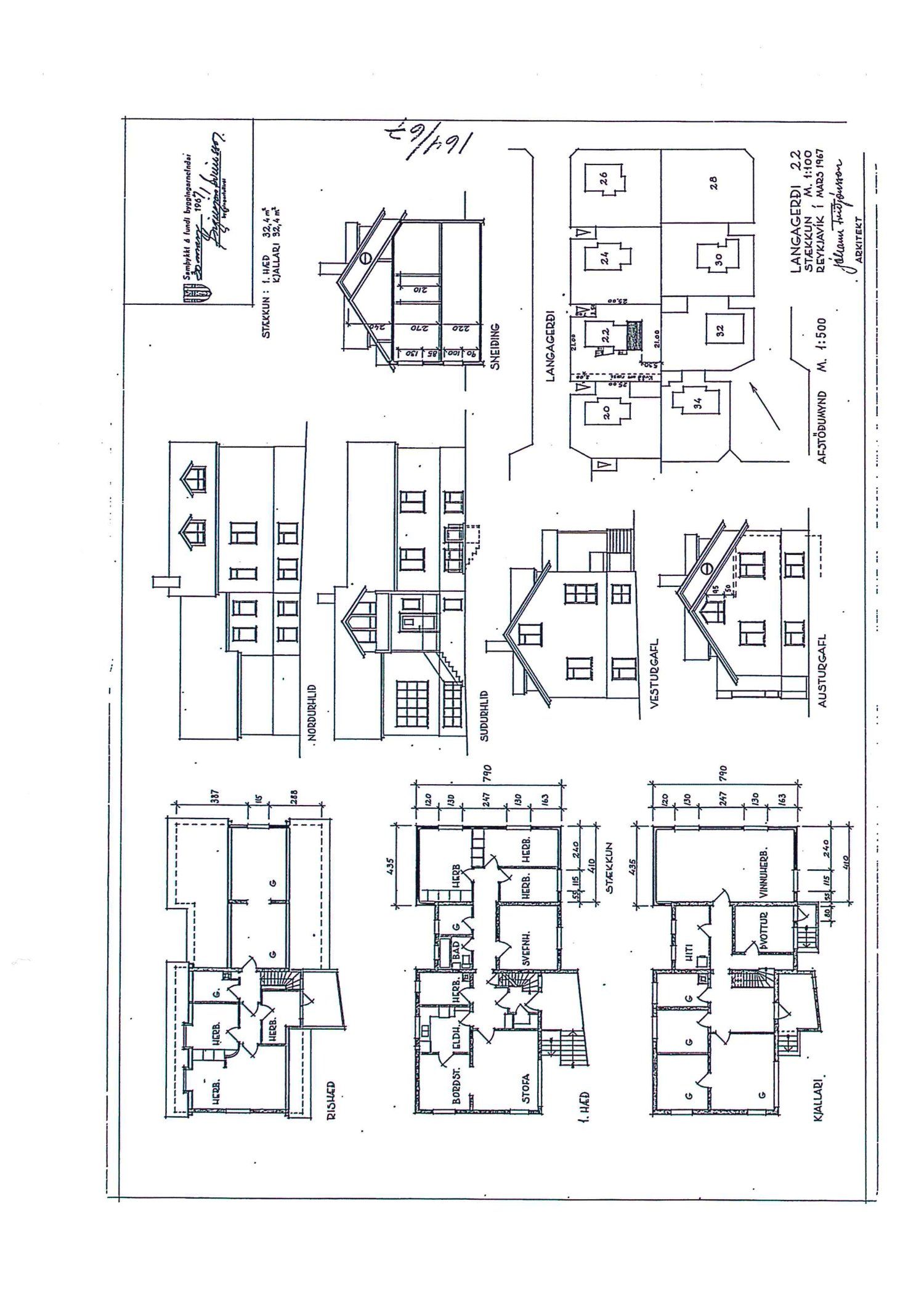
Að lokinni grenndarkynningu er lagt fram að nýju erindi frá afgreiðslufundi byggingarfulltrúa frá 20. október 2020 þar sem sótt er um leyfi til þess að bæta við tveimur kvistum á norður- og suðurhlið ásamt svölum og stiga niður í garð á 1. hæð í fjöleignarhúsi á lóð nr. 22 við Langagerði. Erindi var grenndarkynnt frá 3. nóvember 2020 til og með 1. desember 2020. Eftirtaldir sendu athugasemdir: Kristján Brynjar Bjarnason og Björg Valgeirsdóttir dags. 1. desember 2020. Einnig er lögð fram umsögn skipulagsfulltrúa, dags. 22. janúar 2021. Erindi fylgir afrit af eldri teikningum samþykktum 27. nóvember 1980 og fyrirspurnarteikningum dags. 24. apríl 2019. umboð eigenda íbúðar 01-0101 dags. 23. september 2019 og samþykki meðlóðarhafa áritað á A3 afrit af teikningum A-100 - A-101 dagsettum 3. september 2019. Útskrift úr gerðabók embættisafgreiðslufundar skipulagsfulltrúa frá 18. október 2019 fylgir erindi, ásamt umsögn skipulagsfulltrúa dags. 18. október 2019. Útskrift úr gerðabók embættisafgreiðslufundar skipulagsfulltrúa frá 18. september 2020 fylgir erindi, ásamt umsögn skipulagsfulltrúa dags. 18. september 2020. Einnig fylgir bréf skipulagsfulltrúa dags. 21. september 2020.Stækkun: 1.8 ferm., 9.1 rúmm. Gjald kr. 11.200.
Svar

Umsögn skipulagsfulltrúa, dags. 22. janúar 2021, staðfest.Vísað til fullnaðarafgreiðslu byggingarfulltrúa.

Gestir
Ingvar Jón Bates Gíslason verkefnastjóri tekur sæti á fundinum undir þessum lið með fjarfundarbúnaði.