Síðumúli 23 01.29.510.5
Síðast Samþykkt á fundi fyrir 6 árum síðan.
Skipulags- og samgönguráð nr. 37
Samþykkt
Fyrirspurn
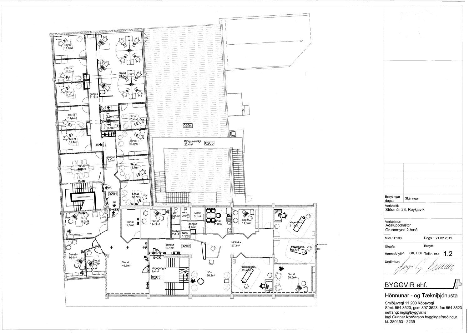
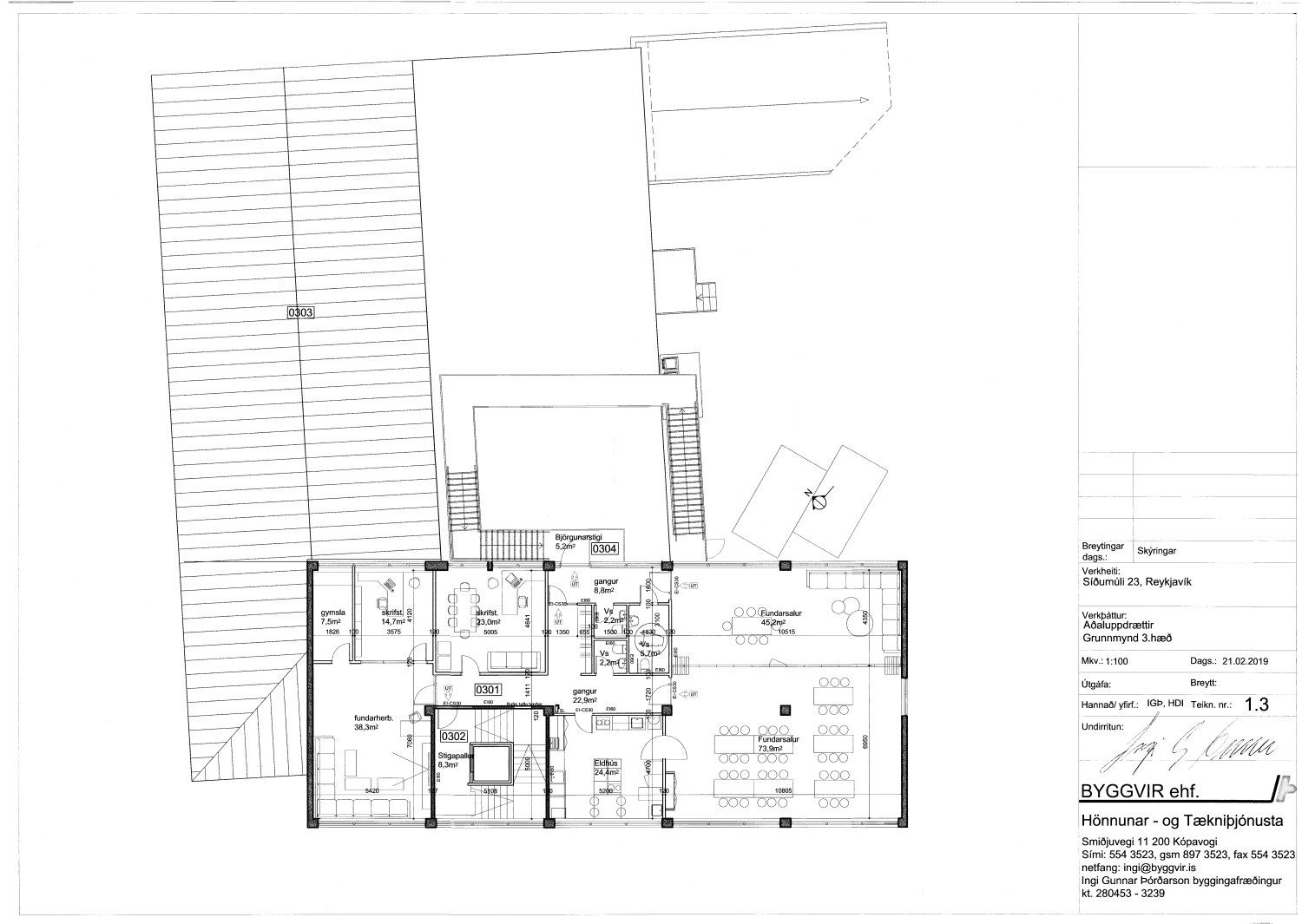
Lagt fram að nýju erindi frá afgreiðslufundi byggingarfulltrúa frá 5. mars 2019 þar sem sótt er um leyfi fyrir áður gerðum breytingum á 3. hæð og staðsetja nýjan flóttastiga á bakhlið húss á lóð nr. 23 við Síðumúla. Erindi var grenndarkynnt frá 25. mars 2019 til og með 22. apríl 2019. Eftirtaldir aðilar sendu athugasemdir: Jón Ingvar Garðarsson dags. 22. apríl 2019. Einnig er lögð fram umsögn skipulagsfulltrúa dags. 10. maí 2019. Samþykki meðeigenda dags. 7. janúar 2019 og skýringarblað hönnuðar ódags. fylgir erindi. Útskrift úr gerðabók embættisafgreiðslufundar skipulagsfulltrúa frá 25. janúar 2019 fylgir erindi, ásamt umsögn skipulagsfulltrúa dags. 25. janúar 2019. Gjald kr. 11.200
Svar

Umsögn skipulagsfulltrúa, dags. 10. maí 2019, samþykkt.
Vísað til fullnaðarafgreiðslu byggingarfulltrúa

Gestir
Lilja Grétarsdóttir verkefnisstjóri tekur sæti á fundinum undir þessum lið.
108 Reykjavík
Landnúmer: 103837 → skrá.is
Hnitnúmer: 10015202
Kaupskrá 3 færslur
206.918.000 kr. 20.12.2006
Atvinnuhúsnæði · 1143 m² · bygg. 1963
206.918.000 kr. 20.12.2006
Atvinnuhúsnæði · 1143 m² · bygg. 1967
206.918.000 kr. 20.12.2006
Atvinnuhúsnæði · 1143 m² · bygg. 1967