Bergstaðastræti 29 01.18.441.3
Síðast Samþykkt á fundi fyrir 6 árum síðan.
Málsaðilar
Guðmundur Aðalsteinsson
Skipulags- og samgönguráð nr. 39
Samþykkt
Fyrirspurn
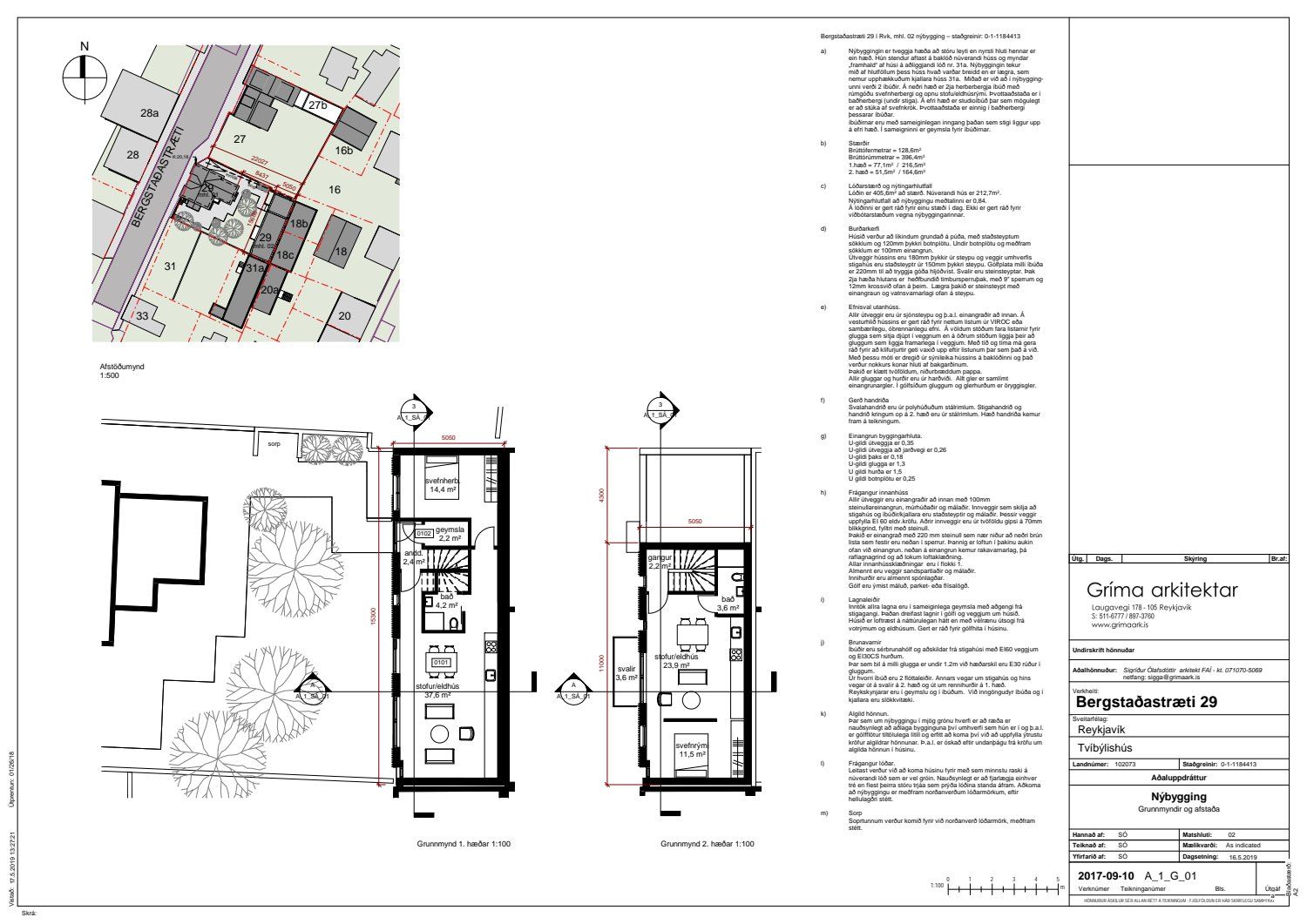
Að lokinni grenndarkynningu er lagt fram að nýju erindi frá afgreiðslufundi byggingarfulltrúa frá 23. október 2018 þar sem sótt er um leyfi til byggja mhl. 02 sem er tveggja hæða steinsteypt íbúðarhús með kjallara á lóð nr. 29 við Bergstaðastræti. Erindi var grenndarkynnt frá 5. nóvember 2018 til og með 3. desember 2018. Eftirtaldir aðilar sendu athugasemdir: Húseigendafélagið f.h. Telmu Hrund Jóhannesdóttur dags. 29. nóvember 2018, Brynja Aðalsteinsdóttir dags. 30. nóvember 2018, Berglind Sigurðardóttir f.h. eigenda að Bergstaðastræti 31A og Helga Berglind Atladóttir og Bjarni Már Bjarnason dags. 1. desember 2018, Sigurður Atli Atlason dags. 2. desember 2018 og Halldóra Jónsdóttir, Sigurður Páll Árnason, Ísold Jakobsdóttir og Benedikt Óttar Snæbjörnsson dags. 3. desember 2018. Einnig er lagður fram uppdráttur/sniðmyndir GRÍMA-arkitekta dags. 21. desember 2018 og umsögn Minjastofnunar Íslands dags. 11. janúar 2019. Jafnframt eru lagðir fram lagfærðir uppdættir GRÍMA-arkitekta ehf. dags. 16. maí 2019. Einnig lögð fram umsögn skipulagsfulltrúa dags. 24. maí 2019. 
Svar

Samþykkt með þeim breytingum sem fram koma í umsögn skipulagsfulltrúa dags. 24. maí 2019.