Vesturgata 51C 01.13.400.7
Síðast Samþykkt á fundi fyrir 6 árum síðan.
Málsaðilar
Hafþór Páll Bryndísarson
Skipulags- og samgönguráð nr. 39
Samþykkt
Fyrirspurn
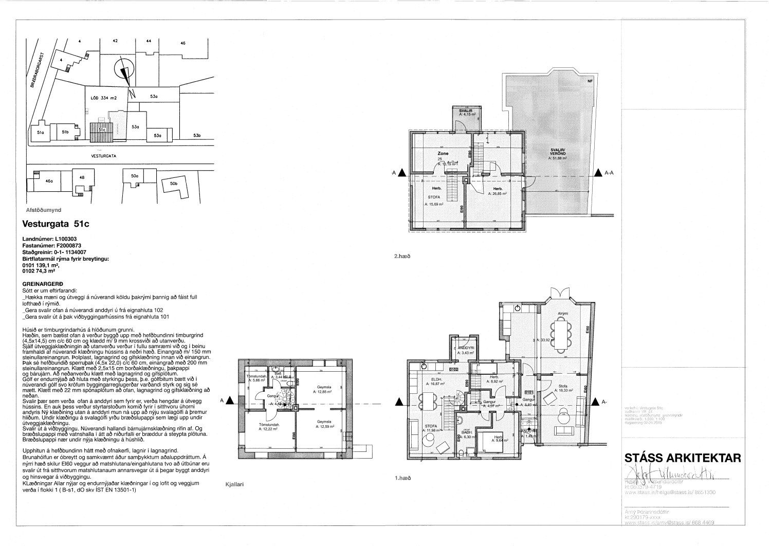
Að lokinni grenndarkynningu er lagt fram að nýju erindi frá afgreiðslufundi byggingarfulltrúa frá 5. febrúar 2019 þar sem sótt er um leyfi til þess að hækka ris þannig að ný hæð verði þar sem nú er hæð og ris í húsi á lóð nr. 51C við Vesturgötu. Einnig er lögð fram umsögn Minjastofnunar Íslands dags. 25. mars 2019 og umsögn skipulagsfulltrúa dags. 22. mars 2019. Erindi var grenndarkynnt frá 15. apríl 2019 til og með 13. maí 2019. Eftirtaldir aðilar sendu athugasemdir: Sturla Einarsdóttir og Þórunn Björnsdóttir dags. 12. maí 2019. Erindinu var vísað til umsagnar verkefnisstjóra á embættisafgreiðslufundi skipulagsfulltrúa 17. maí 2019 og er nú lagt fram að nýju ásamt umsögn skipulagsfulltrúa dags. 31. maí 2019.
Svar

Samþykkt með vísan í umsögn skipulagsfulltrúa dags. 31. maí 2019. 
Vísað til fullnaðarafgreiðslu byggingarfulltrúa.