Síðast Samþykkt á fundi fyrir 6 árum síðan.
Málsaðilar
Kristján Björnsson
Skipulags- og samgönguráð nr. 24
Annað
Fyrirspurn
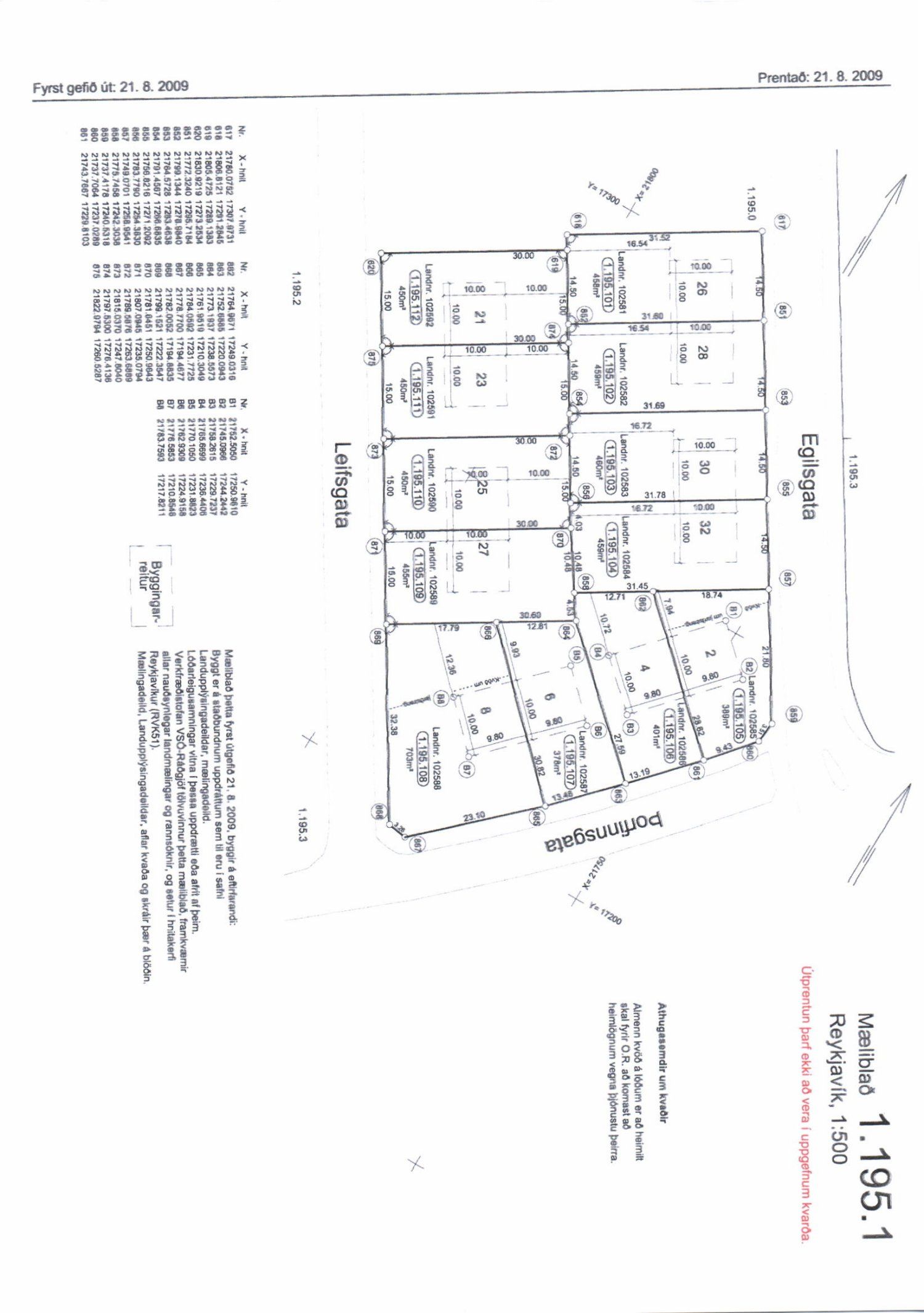
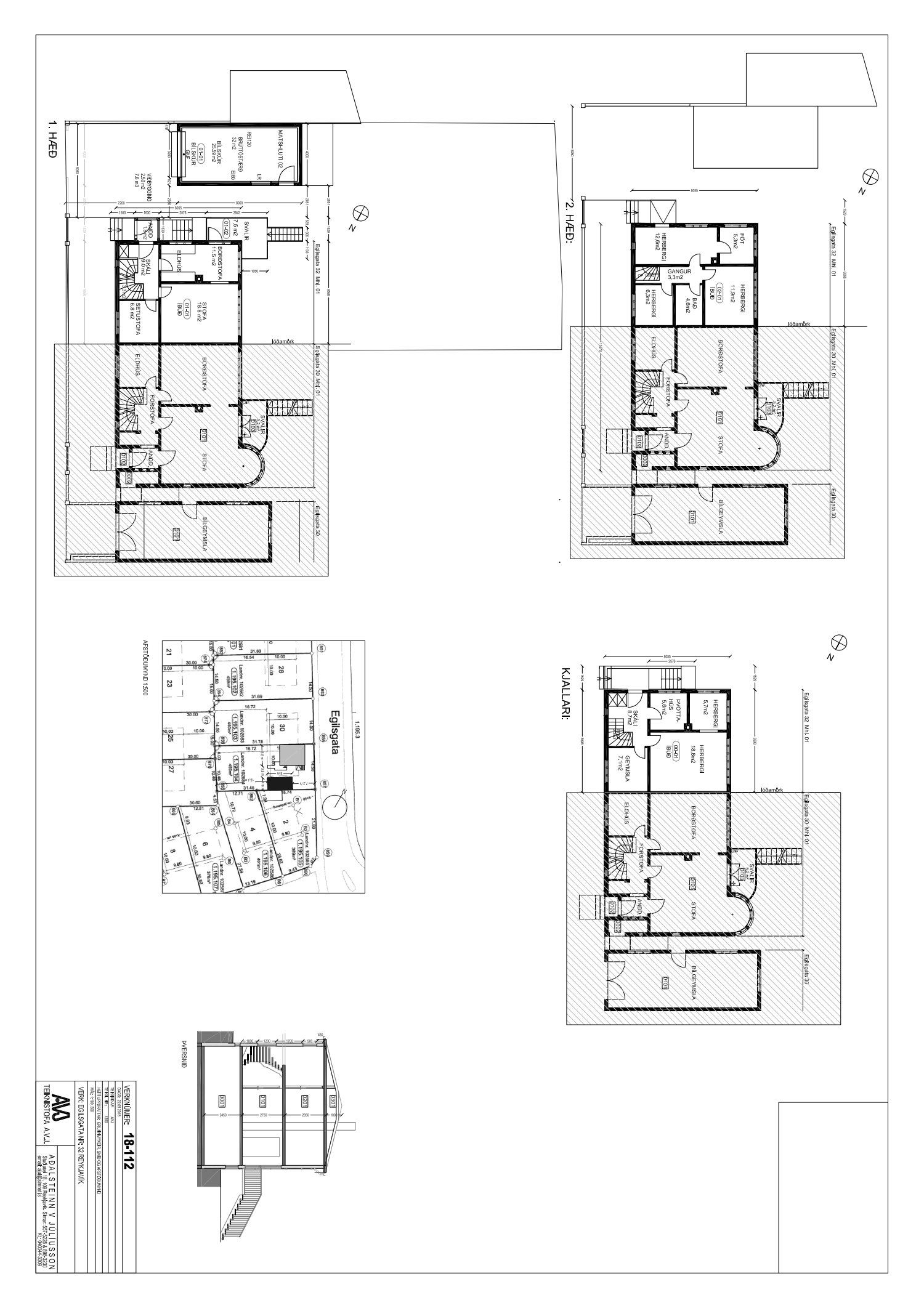
Að lokinni grenndarkynningu er lagt fram að nýju erindi frá afgreiðslufundi byggingarfulltrúa frá 2. október 2018 þar sem sótt er um leyfi til að byggja bílskúr, anddyri og svalir á 1. hæð húss á lóð nr. 32 við Egilsgötu. Erindi var grenndarkynnt frá 19. nóvember 2018 til og með 17. desember 2018. Eftirtaldir aðilar sendu athugasemdir: Skúli Þorkelsson, Lilja G. Sigurardóttir og Alba Solís f.h. Húseigendur Þorfinnsgötu 2. dags. 16. desember 2018. Einnig er lögð fram umsögn skipulagsfulltrúa dags. 9. janúar 2019. Bílskúr:  32 ferm., 93,3 rúmm. Stækkun húss:  xx ferm., xx rúmm. Gjald kr. 11.000 Umsögn skipulagsfulltrúa dags. 9. janúar 2019 samþykkt.
Svar

Vísað til fullnaðarafgreiðslu byggingarfulltrúa.

Gestir
Guðlaug Erna Jónsdóttir verkefnisstjóri tekur sæti á fundinum undir þessum lið.