Síðast Samþykkt á fundi fyrir 7 árum síðan.
Málsaðilar
Ingólfur Abraham Shahin
Skipulags- og samgönguráð nr. 23
Annað
Fyrirspurn
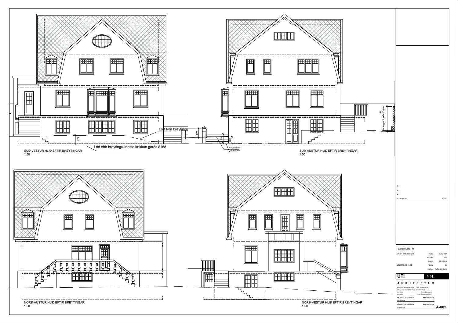
Að lokinni grenndarkynningu er lagt fram að nýju erindi frá afgreiðslufundi byggingarfulltrúa frá 18. september 2018 þar sem sótt er um leyfi til að byggja nýjan kvist á norðurhlið, gera nýjan stiga milli annarrar hæðar og riss, breyta innra fyrirkomulagi og lækka land við suðurhlið húss á lóð nr. 11 við Fjölnisveg. Einnig er lagður fram tölvupóstur Hjörleifs Stefánssonar dags. 23. nóvember 2018. Erindi var grenndarkynnt frá 2. nóvember 2018 til og með 19. desember 2018. Eftirtaldir aðilar sendu athugasemdir: Jónas Hagan Guðmundsson dags. 5. nóvember 2018 og Hjörleifur Stefánsson og Sigrún Eldjárn dags. 19. desember 2018. Einnig er lögð fram umsögn skipulagsfulltrúa dags. 4. janúar 2019. Samþykkt. Vísað til fullnaðarafgreiðslu byggingarfulltrúa.
Svar

(C)    Ýmis mál

Gestir
Hildur Gunnarsdóttir verkefnastjóri tekur sæti á fundinum undir þessum lið.