Hörgshlíð 10 01.73.010.5
Síðast Vísað til skipulagsfulltrúa á fundi fyrir 6 árum síðan.
Málsaðilar
Torfi G Yngvason
Skipulags- og samgönguráð nr. 57
Samþykkt
Fyrirspurn
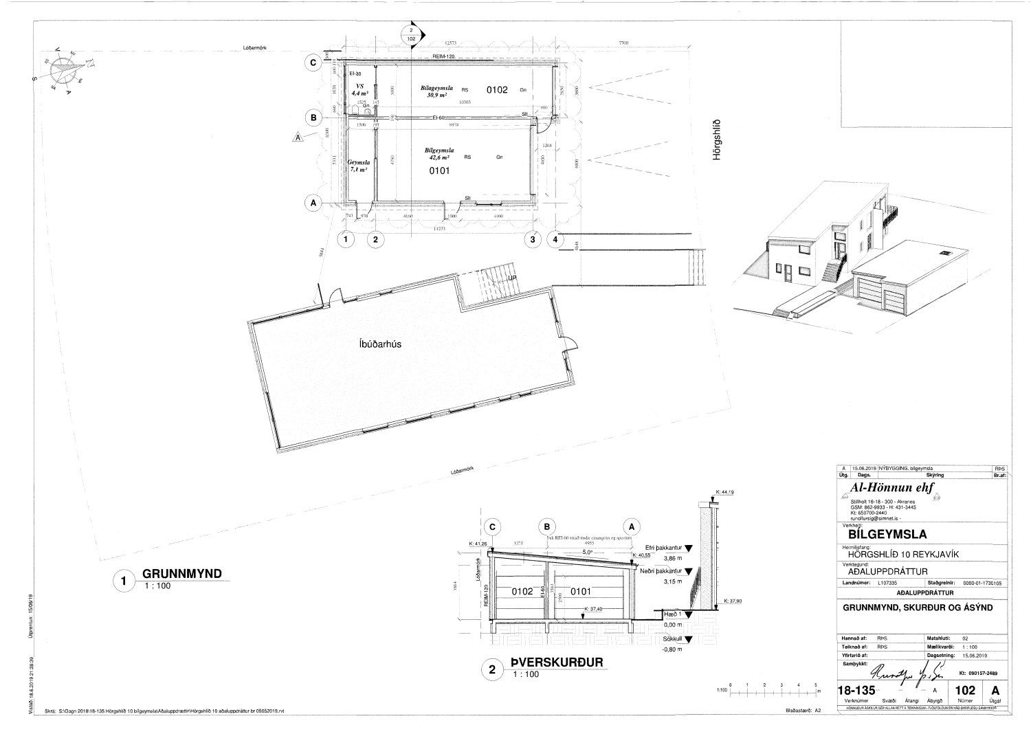
Að lokinni grenndarkynningu er lagt fram að nýju erindi þar sem sótt er um leyfi til að byggja bílageymslu með forsteyptum sökklum og samlokuveggjum ásamt geymslu og snyrtingu á lóð nr. 10 við Hörgshlíð. Einnig eru lagðir fram aðaluppdrættir Al-hönnunar ehf. dags. 15. júní 2019 og skuggavarpsuppdrættir dags. 16. júlí 2019. Erindi var grenndarkynnt frá 15. ágúst 2019 til og með 12. september 2019. Eftirtaldir aðilar sendu athugasemdir: Húseigendafélagið f.h. húsfélags Hörgshlíð 8 dags. 12. september 2019 og Auður Inga Ingvarsdóttir og Ingólfur Björnsson f.h. þinglýstra eigenda að Hörgshlíð 8 íbúð 201 dags. 12. september 2019. Erindið er lagt fram að nýju ásamt lagfærðum aðaluppdrætti, uppfærð afstöðumynd, dags. 16. september 2019 mótt. 31. október 2019 og skuggavarpsuppdrætti, núverandi ástand, dags. 4. nóvember 2019. Einnig er lögð fram umsögn skipulagsfulltrúa dags. 14. nóvember 2019.
Svar

Samþykkt með þeim breytingum sem koma fram í umsögn skipulagsfulltrúa dags. 6. desember 2019. Vísað til fullnaðarafgreiðslu byggingarfulltrúa.

Gestir
Ingvar Jón Bates Gíslason verkefnastjóri tekur sæti á fundinum undir þessum lið.
105 Reykjavík
Landnúmer: 107335 → skrá.is
Hnitnúmer: 10023168
Kaupskrá 3 færslur
56.000.000 kr. 24.07.2017
Fjölbýli · 140 m² · 3 herb. · bygg. 1961
41.000.000 kr. 24.07.2017
Fjölbýli · 97 m² · 2 herb. · bygg. 1961
22.500.000 kr. 16.01.2007
Fjölbýli · 97 m² · 2 herb. · bygg. 1961