Síðast Samþykkt á fundi fyrir 5 árum síðan.
Annað
Fyrirspurn
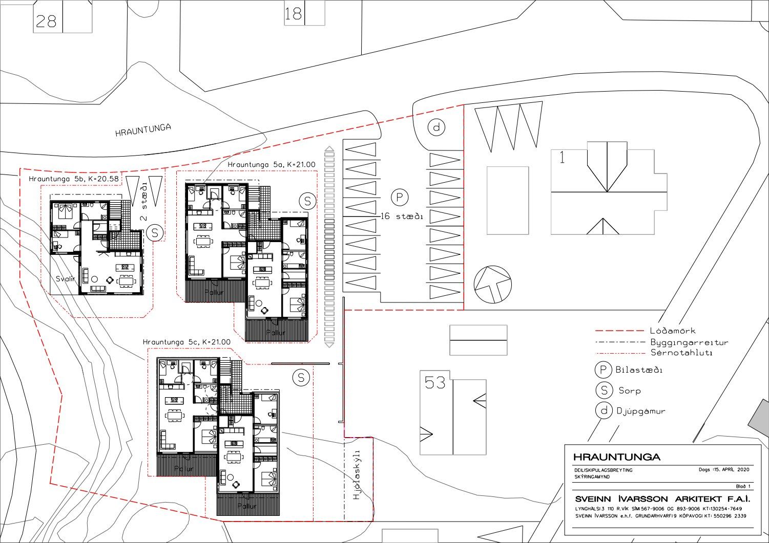
1.liður úr fundargerð skipulags- og byggingaráðs frá 5.maí sl. Halldór Svansson fh. GS Húsa sækir um breytingu á deiliskipulagi. Um er að ræða fjölgun íbúða úr 5 í 8 skv. tillögu Sveins Ívarssonar dags. 11.3.2020.
Skipulags- og byggingarráð samþykkir deiliskipulagsbreytinguna og vísar erindinu til staðfestingar bæjarstjórnar sbr. skipulagslög 123/2010.
Fulltrúi Samfylkingarinnar minnir á að gildandi deiliskipulag fyrir Hrauntungu 5 sem samþykkt var í bæjarstjórn 12. júní, 2019, var unnin í nánu samráði við íbúa á svæðinu. Það sótti innblástur í húsagerðahefð í Hafnarfirði frá ýmsum tímabilum, samtímis því að vísa til nútímans með það að morkmiði að tengja byggingarnar við staðinn sem þær eru byggðar og um leið styðja við fallega götumynd. Núverandi deiliskipulagstillaga gerir það ekki enda um allt aðra húsagerð að ræða og einnig er verið að verið að fjölga íbúðum og bílastæðum og þá getur breytt húsagerð haft áhrif á skuggavarp. Allt þættir sem íbúar gerðu athugsemdir við á sínum tíma. Því miður er þetta enn eitt dæmið um hringlandann hjá meirihluta Framsóknar og Sjálfstæðisflokks í skipulags- og byggingarmálum sem bitnar nú einkum á íbúum svæðisins sem þurfa að ganga enn einu sinni í gegnum deiliskipulagsbreytingar á lóðinni.
Meirihluti Sjálfstæðisflokks og Framsóknar bóka eftirfarandi: Á fundi skipulags- og byggingarráðs þann 24. mars sl. var lagt fram erindi ásamt uppdráttum Sveins Ívarssonar arkitekts, þar sem farið er fram á að fjölga íbúðum um þrjár, bílastæðum er fjölgað og nýtingarhlutfall lóðar er óbreytt 0,4. Fulltrúi Samfylkingarinnar, ásamt öðrum fulltrúum ráðsins, tók jákvætt í erindið. Enn og aftur verður stefnubreyting hjá Samfylkingunni á undraskömmum tíma og í stað þess að viðurkenna slíkt og eigin vandræðagang innan sinna raða; er bent á meirihluta Sjálfstæðisflokks og Framsóknar. Slíkur vandræðagangur og vinnubrögð dæma sig sjálf.
Fulltrúi Samfylkingarinnar bendir á að hann hefur haft athugasemdir við fyrirliggjandi deiliskipulagstillögu frá því að þær komu fram fyrst en nú liggur fyrir endanlega tillaga í málinu. Fyrirliggjandi deiliskipulagstillaga er enn eitt dæmið um stefnuleysi meirihlutans í skipulags- og byggingarmálum í Hafnarfirði, en innan við ár er síðan samþykkt var í ráðinu ítarleg tillaga fyrir lóðina, sem núna er að engu haft. Minnt er á að góð sátt náðist við íbúa svæðsins um gildandi deiliskipulag, sem nú er í upplausn. Þetta eru ekki góð vinnubrögð og ekki til þess fallin að skapa traust íbúa til skipulagsmála í Hafnarfirði.
Meirihluti Sjálfstæðisflokks og Framsóknar bóka eftirfarandi: Í ljósi afgreiðslu ráðsins og þeirrar samstöðu sem um hana ríkti - meðal annars hjá fulltrúa Samfylkingarinnar - þann 24. mars síðastliðinn, vísum við ásökunum um stefnuleysi í þessu máli og öðrum til föðurhúsanna. Að öðru leyti ítrekum við fyrri bókun meirihlutans hér undir sama lið.
Svar

Til máls tekur Ingi Tómasson.

Þá tekur Adda María til mál undir fundarsköpum.

Einnig tekur til máls Ágúst Bjarni Garðarsson. Til andsvars kemur Rósa Guðbjartsdóttir.

Þá tekur Guðlaug Kristjánsdóttir til máls. Til andsvars kemur Ágúst Bjarni Garðarsson.

Til máls tekur Friðþjófur Helgi Karlsson. Til andsvars kemur Ágúst Bjarni og svarar Friðjófur Helgi andsvari.

Til máls tekur Guðlaug Krsitjánsdóttir undir fundarsköpum.

Þá tekur Jón Ingi Hákonarson til máls.

Þá tekur Ingi Tómasson til máls öðru sinni. Til andsvars kemur Guðlaug Kristjánsdóttir.

Til máls tekur Rósa Guðbjartsdóttir. Til andsvars kemur Guðlaug Kristjánsdóttir.

Til máls tekur Sigurður Þ. Ragnarsson. Til andsvars kemur Rósa Guðbjartsdóttir og svarar Sigurður andsvari. Til andsvars kemur Ágúst Bjarni.

Bæjarstjórn hafnar samhljóða um fyrirliggjandi breytingu á deiliskipulagi.

Ingi Tómasson leggur fram svohljóðandi bókun f.h. bæjarfulltrúa Sjálfstæðisflokks og Framsóknarflokks:

"Fyrirspurn og síðar tillaga að breyttu deiliskipulagi Hrauntungu 5 var lögð fyrir skipulags- og byggingarráð, allir fulltrúar í ráðinu tóku jákvætt í fyrirspurnina og samþykktu síðar tillöguna. Þrátt fyrir að tillaga að nýju deiliskipulagi hafi verið samþykkt á síðasta ári eftir víðtækt og gott samráð við íbúa var það mat ráðsins að tillagan væri þess eðlis að vert væri að bera hana undir íbúa. Nú þegar hafa komið fram viðbrögð við tillögunni með skýrum hætti þar sem henni er harðlega mótmælt. Af þeim sökum teljum við ekki ástæðu til að tillagan fari í það ferli sem skipulagslög gera ráð fyrir. Því er lagt til að gildandi deiliskipulag fyrir Hrauntungu 5 standi óbreytt."

Guðlaug Kristjánsdóttir leggur fram svohljóðandi bókun:

Bæjarfulltrúar Bæjarlistans, Viðreisnar, Samfylkingar og Miðflokks gera athugasemdir við undirbúning þessa máls, á öllum stigum, þar með talið fyrir fund bæjarstjórnar hér í dag.
Lítil sem engin gögn eða greiningar fylgdu tillögunni út úr skipulags- og byggingaráði, þrátt fyrir að óskað hafi verið eftir slíku á fundi forsetanefndar síðastliðinn mánudag.
Bestu og haldbærustu gögn sem undirrituð hafa fengið fyrir fundinn hér í dag eru komin frá íbúum, sem eiga hrós skilið fyrir skýr og málefnaleg vinnubrögð.
Gott hefði verið að vita af frávísunartillögu meirihlutans á eigin tillögu fyrir fund bæjarstjórnar, en það er því miður einkenni á þessu máli að upplýsingar til bæjarfulltrúa um eðli þess og aðdraganda eru af skornum skammti.
Hefði tillagan staðið óbreytt, hefðu undirrituð alltaf greitt atkvæði gegn henni, af þeim ástæðum að þessar breytingar hafa mjög nýlega verið ræddar við íbúa í nærliggjandi húsum og sátt náð um útfærslur með málamiðlun. Tillagan sem skipulags- og byggingarráð samþykkti og lagði fyrir bæjarstjórn gekk gegn þeirri nýgerðu sátt.

Undir bókunina skrifa:
Guðlaug Svala Kristjánsdóttir,
Jón Ingi Hákonarson,
Adda María Jóhannsdóttir,
Friðþjófur Helgi Karlsson,
Sigurður Þórður Ragnarsson.