Planitor
Hafnarfjörður
/
Bæjarstjórn
/
Nr. 1847
/
Geymslusvæðið, vegstæði, Reykjanesbraut
Geymslusvæðið, vegstæði, Reykjanesbraut
Vakta 2002127
Síðast
Samþykkt
á fundi fyrir 4 árum síðan.
Bæjarstjórn
nr. 1847
13. maí, 2020 ·
Fundargerð
arrow.up.right.circle.fill
Samþykkt
‹ 5
6
7 ›
Fyrirspurn
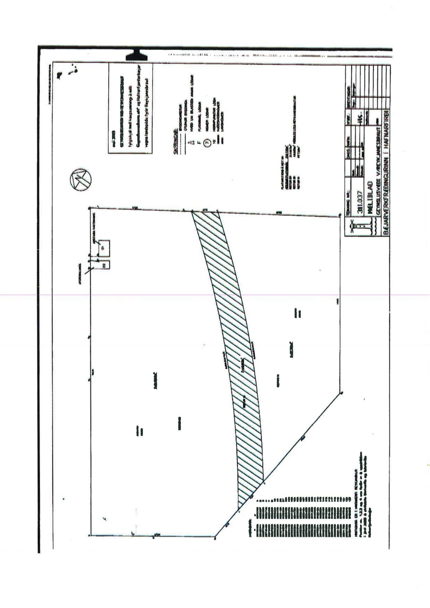
7.liður úr fundargerð bæjarráðs frá 7.maí sl. Lagt fram samkomulag við Geymslusvæðið.
Bæjarráð samþykkir fyrirliggjandi samkomulag og vísar til staðfestingar í bæjarstjórn.
Svar
Bæjarstjórn samþykkir samhljóða afgreiðslu bæjarráðs.
Drög að samkomulag vegstæði F2330509 5. maí 2020.pdf
PDF
Vegstæði, kaupsamningur dags. 2. júlí 2003.pdf
PDF
Stofnskjal.pdf
PDF
Málsferill
4 fundir
23. mars, 2021
Annað
Skipulags- og byggingarráð nr. 731
13. maí, 2020
Samþykkt
Bæjarstjórn nr. 1847
7. maí, 2020
Annað
Bæjarráð nr. 3544
13. febrúar, 2020
Vísað til umhverfis- og skipulagssviðs
Bæjarráð nr. 3538
Sjá málsferil →
Loka