Síðast Samþykkt á fundi fyrir 9 árum síðan.
Skipulags- og byggingarráð nr. 592
Samþykkt
Fyrirspurn
Afgreiðslufundur skipulags- og byggingarfulltrúa 2.3. sl. vísaði eftirfarandi erindi til skipulags- og byggingarráðs:
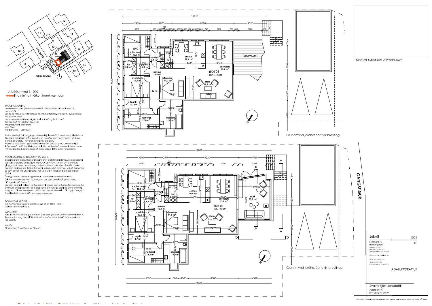
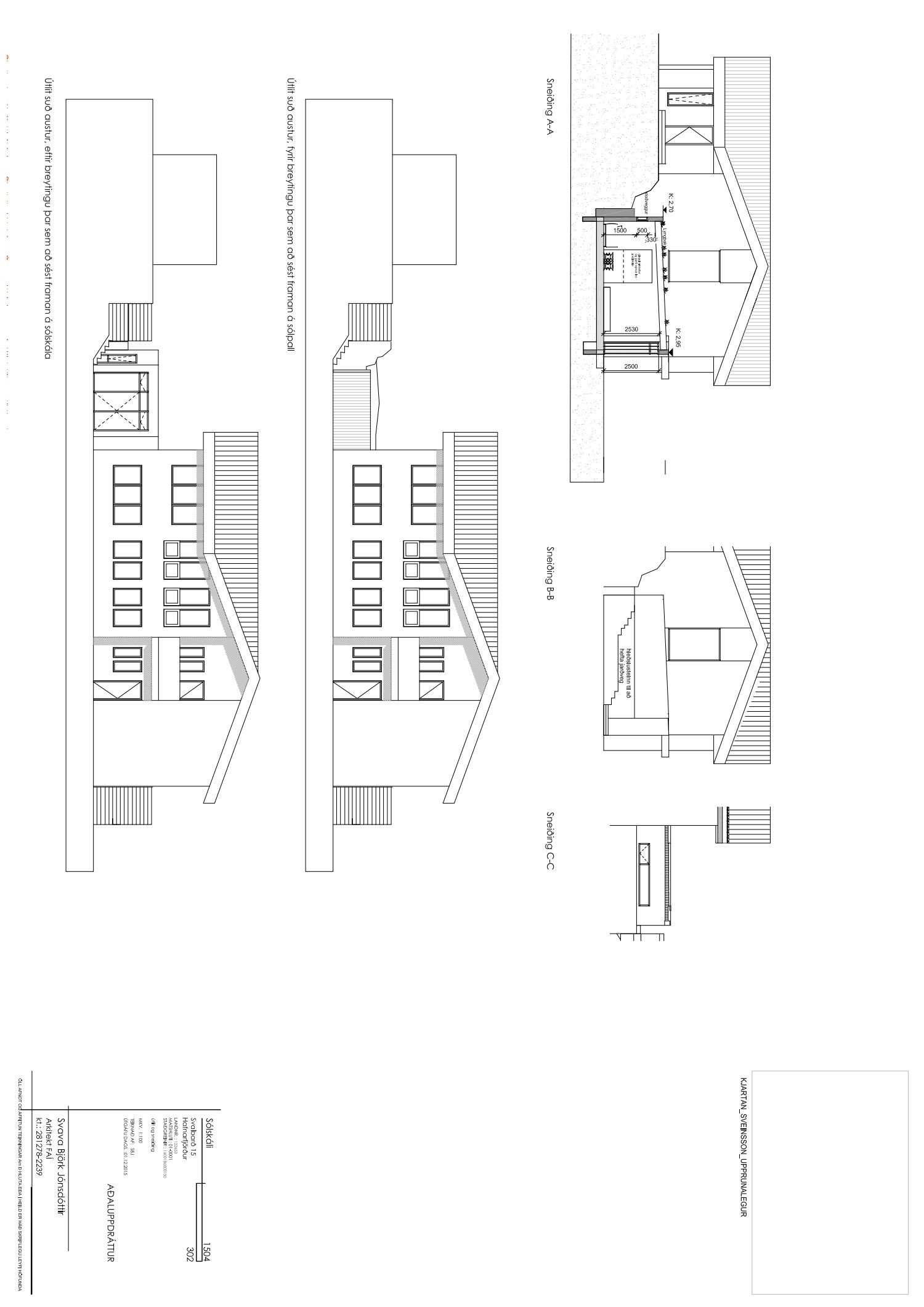
Lagt fram erindi Kolbrúnar Ýr Gísladóttur dags. 30.11.2015 þar sem sótt er um leyfi fyrir byggingu sólskála í kjallaraíbúð á norðvestur hlið hússins skv. teikningum Svövu Bjarkar Jónsdóttur dags. 1.12.2015 Nýjar teikningar bárust 9.12.2015 og undirskriftir nágranna.
Svar

Skipulags- og byggingarráð heimilar að fyrirliggjandi tillaga verði grendarkynnt með vísan í 1.mgr. 44 gr. laga nr. 123/2010.